Prodej - hotel, 435 m²
Hřensko, Děčín
19 875 000 KčProdej - hotel, 435 m²
Hřensko, Děčín
Prodej penzionu 435 m², Hřensko
Malebná pohraniční obec zaměřená na cestovní ruch na soutoku Labe a Kamenice, vyhledávaná turisty z celé Evropy. Místo s nezaměnitelnou atmosférou v každém ročním období.
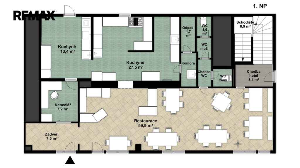
Ve výhradním zastoupení nabízím ke koupi zavedený penzion s restaurací, který již desítky let úspěšně slouží návštěvníkům národního parku. Plně vybavený čtyřpodlažní objekt s prostorným půdním prostorem je připravený k okamžitému převzetí.
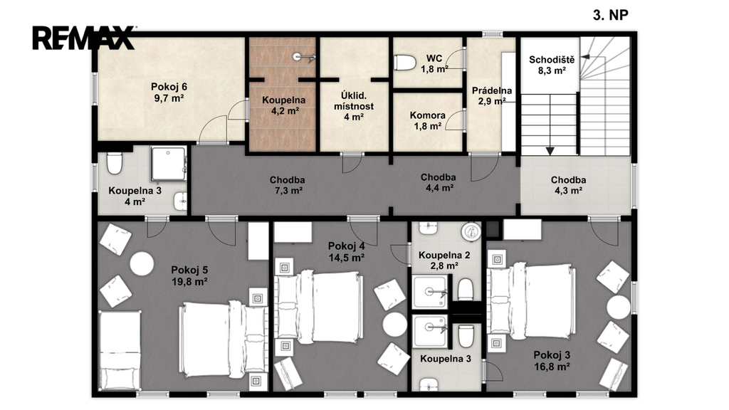
- Celkem 11 ubytovacích jednotek (vč. 2 apartmánů)
- Ubytovací kapacita: 27 osob
- Restaurace: 45 míst
- Předzahrádka: 24 míst + pergola
- 8 parkovacích stání
Výměry ploch:
Celková užitná plocha: 435 m²
Podlahová plocha: 556 m²
Zastavěná plocha: 139 m²
Celková velikost pozemku: 561 m²
Půda: 116 m²
Na pozemku se nachází vlastní parkoviště, technické zázemí pro údržbu, úschovna kol a sportovního vybavení a pergola pro hosty, které rozšiřují možnosti využití objektu a zvyšují komfort návštěvníků.
Kompletní fotodokumentace a veškeré podklady k nabídce jsou k dispozici na vyžádání.
Zaujal vás potenciál této nemovitosti? Neváhejte mě kontaktovat, nemovitost Vám rád osobně představím.
Prodávající si vyhrazuje právo vybrat kupujícího na základě jím zvolených kritérií. Prodávající si vyhrazuje právo vybrat kupujícího na základě jím zvolených kritérií.
| Cena: | 19 875 000 Kč |
| Poznámka: | včetně právního a administrativního servisu |
| Datum k nastěhování: | 14.04.2026 |
| Číslo zakázky: | REALITYMIX-436807 |
Podrobné informace
- Zastavěná plocha: 194 m²
- Užitná plocha: 435 m²
- Plocha parcely: 561 m²
- Počet podlaží objektu: 4
- Druh objektu: cihlová
- Stav objektu: velmi dobrý
- Typ zařízení: Hotel
- Doprava: silnice, autobus
- Komunikace: dlážděná
- Elektřina: Elektro - 120 V, Elektro - 230 V
- Voda: Voda - dálkový vodovod
- Telekomunikace: Internet
- Plyn: Plynovod
- Odpad: Kanalizace
- Energetický ukazatel podle vyhlášky: č. 264/2020 Sb.
Právní rádce
-
Detail
V tomto článku shrneme nejdůležitější věci, které byste si měli promyslet, pokud se chystáte prodat svou nemovitost a chcete, abyste s kupujícím nemusel následně řešit vzniklé problémy.
Jako prodávající nesete rizika spojená nejen se samotným obchodem, ale i se stavem nemovitosti v době prodeje a pro minimalizaci rizik, je dobré se zamyslet nad uvedenými oblastmi.
-
Detail
Realitní makléř má své nezastupitelné místo v realitním obchodu. Realitním makléřem nemyslím nevzdělané jelito, které absolvovalo dvoudenní školení a ví, jak se nahraje inzerát na inzertní portál.
Realitním makléřem, který se Vám skutečně vyplatí, je zkušený profesionál, který je schopen Vám dobře poradit jak prodat za co nejvíc a s nejmenším rizikem a hlavně je Vás schopen obratně provést celým realitním obchodem.