Pronájem - obchodní prostor, 400 m²
Víta Nejedlého, Slezské Předměstí, Hradec Králové
50 000 Kč (za měsíc)Pronájem - obchodní prostor, 400 m²
Víta Nejedlého, Slezské Předměstí, Hradec Králové
50 000 Kč
(za měsíc)
B
Úsporná
Pronájem nových nebytových prostor s výbornou dostupností a vlastním parkováním
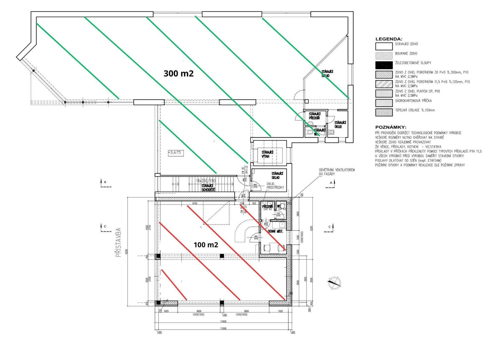
Nabízíme Vám k pronájmu příjemné, moderní, plně klimatizované prostory s vlastním parkováním a velkým výtahem (bezbariérový přístup) umístěné v 1. patře prodejního, obchodního centra v ulici Víta Nejedlého. K dispozici jsou dva prostory, které lze pronajmout společně, nebo každý zvlášť. Prostor A mám 300 m² a prostor B má 100 m². Budova je nekuřácká, internetové připojení je zajištěno.
Základní informace:
Dispozice:
Prostor A jeden velký prostor (možnost úpravy), 2 x sklad s technickým zázemím, výtah, kuchyňka, WC
celková plocha nabízeného prostoru je 300 m²
u budovy je dostatek vlastních parkovacích míst
Showroom je v 1. patře se samostatným vchodem a přístupem po schodišti
výtah je určený pro potřeby nájemce
podlaha: dlažba
volný dle dohody ihned
Prostor B jeden velký prostor (možnost úpravy), výtah, kuchyňka, WC
celková plocha nabízeného prostoru je 100 m²
u budovy je dostatek vlastních parkovacích míst
Showroom je v 1. patře se samostatným vchodem a přístupem po schodišti
výtah je určený pro potřeby nájemce
podlaha: dlažba
volný cca od 06/2026
Finanční podmínky:
Prostor A měsíční nájemné: 70.000, Kč + DPH , elektrická energie se přepisuje na nájemce, teplo se vyúčtovává podílem s druhým nájemcem celkové měsíční náklady cca 5.000, Kč
Prostor B měsíční nájemné: 50.000, Kč + DPH , elektrická energie se přepisuje na nájemce, teplo se vyúčtovává podílem s druhým nájemcem celkové měsíční náklady cca 2.000, Kč
Na střeše objektu je vybudována fotovoltaika.
vratná jistota: dle dohody
provize zprostředkovatele ve výši jednoho nájmu
platby měsíční
Základní informace:
Dispozice:
Prostor A jeden velký prostor (možnost úpravy), 2 x sklad s technickým zázemím, výtah, kuchyňka, WC
celková plocha nabízeného prostoru je 300 m²
u budovy je dostatek vlastních parkovacích míst
Showroom je v 1. patře se samostatným vchodem a přístupem po schodišti
výtah je určený pro potřeby nájemce
podlaha: dlažba
volný dle dohody ihned
Prostor B jeden velký prostor (možnost úpravy), výtah, kuchyňka, WC
celková plocha nabízeného prostoru je 100 m²
u budovy je dostatek vlastních parkovacích míst
Showroom je v 1. patře se samostatným vchodem a přístupem po schodišti
výtah je určený pro potřeby nájemce
podlaha: dlažba
volný cca od 06/2026
Finanční podmínky:
Prostor A měsíční nájemné: 70.000, Kč + DPH , elektrická energie se přepisuje na nájemce, teplo se vyúčtovává podílem s druhým nájemcem celkové měsíční náklady cca 5.000, Kč
Prostor B měsíční nájemné: 50.000, Kč + DPH , elektrická energie se přepisuje na nájemce, teplo se vyúčtovává podílem s druhým nájemcem celkové měsíční náklady cca 2.000, Kč
Na střeše objektu je vybudována fotovoltaika.
vratná jistota: dle dohody
provize zprostředkovatele ve výši jednoho nájmu
platby měsíční
| Cena: | 50 000 Kč / (za měsíc) |
| Datum k nastěhování: | 08.04.2026 |
| Číslo zakázky: | REALITYMIX-979137 |
Podrobné informace
- Plocha kanceláří: 400 m²
- Druh objektu: cihlová
- Stav objektu: novostavba
- Druh prostor: Obchodní
- Ostatní: Garáž, Výtah
- Doprava: dálnice, silnice, MHD
- Elektřina: Elektro - 230 V
- Voda: Zdroj pro celý objekt, Voda - dálkový vodovod
- Plyn: Plynovod
- Odpad: Kanalizace
- Energetická náročnost budovy: B - Úsporná
Mapa
* Umístění na mapě je na základě GPS informací dodaných realitní kanceláří.
* Pozice na mapě je pouze orientační.
Podobné nemovitosti
Pronájem - obchodní prostor, 78 m²
Dukelská třída, Pražské Předměstí, Hradec Králové
39 970 Kč za měsíc
Pronájem - obchodní prostor, 260 m²
třída Edvarda Beneše, Třebeš, Hradec Králové
40 000 Kč za měsíc
Pronájem - obchodní prostor, 490 m²
Holohlavy, Hradec Králové
50 000 Kč za měsíc
Pronájem - obchodní prostor, 94 m²
Dukelská třída, Pražské Předměstí, Hradec Králové
49 000 Kč za měsíc