Prodej - dům/vila, 101 m²
Hradec Králové
14 490 000 KčProdej - dům/vila, 101 m²
Hradec Králové
Prodej rodinného domu Kunčice okres Hradec Králové
Dispozice domu je navržena s důrazem na komfort a praktičnost. Kromě tří obytných místností nabízí také dvě další místnosti vhodné například jako pracovna či sklad. Interiér je řešen designově a funkčně, s kvalitními materiály a vybavením na míru. Kuchyňská linka značky Sykora je doplněna vestavěnými spotřebiči značek Electrolux a AEG, včetně parní trouby, vestavěného kávovaru, myčky, závěsné digestoře ELICA AUDREY a lednice. Pracovní deska je z umělého kamene Dekton o tloušťce 6 cm se zapuštěným granitovým dřezem. V obývacím prostoru jsou instalována krbová kamna Vulsini Storch s přisáváním vzduchu a elektrickou regulací. Koupelna je vybavena prvky značek Solitér, Hansgrohe, Puravida a Alessi, včetně walk-in sprchy a toalety TECE se sprškou a odsáváním zápachu. Interiér doplňují bezfalcové dveře Sapeli Elegant s kováním Tupai Dedos, designové osvětlení s dálkovým ovládáním ENIKA, dotykové vypínače ROON a vestavěné skříně na míru.
Technický stav domu je velmi dobrý, střecha je rovná s PVC fólií a kvalitní izolací, okna jsou hliníková trojskla Schüco včetně velkoformátových HS portálů v obývacím pokoji a ložnici, dvě velkoformátová střešní okna s dálkovým ovládáním a dešťovým senzorem. Podlahy jsou kombinací vinylu a dlažby. Vytápění zajišťují nízkonákladové elektrické rohože, teplá voda je připravována bojlerem o objemu 160 litrů. Dům je připojen na veškeré inženýrské sítě včetně vodovodu, elektřiny a septiku s biologickým filtrem. Bezpečnost zvyšuje kamerový systém EUFY a elektronická zabezpečovací signalizace.
Exteriér domu nabízí rozsáhlou zahradu s maximálním soukromím, zatravněnou plochou a pečlivě navrženou zelení včetně bambusu podle návrhu zahradního architekta. Součástí je bioklimatická hliníková pergola o velikosti 24 m² s otočnými lamelami a elektrickými roletami se senzory proti dešti a větru, která umožňuje komfortní relaxaci za každého počasí. K dispozici je také vyhřívaný bazén s vířivkou Canadian Spa Mollus XXL o rozměrech 10 m² s pískovou filtrací a osvětlením. Terasa kolem bazénu je z materiálu Woodplastic a Terafest premium, doplněná o betonové a kamenné povrchy Piedra. Pro parkování slouží kryté stání pro dvě vozidla, pozemek je oplocen gabionovým plotem s elektrickou bránou a videotelefonem. Na zahradě se nachází také dřevník Korten, ohniště a zahradní domek o velikosti 14 m² s regálovým systémem.
Nemovitost se nachází v tiché slepé ulici, která je zároveň soukromou cestou, v bezprostřední blízkosti centra obce Kunčice (cca 500 m). Lokalita nabízí klidné a bezpečné prostředí s dobrou dostupností do nedalekých Nechanic, kde je kompletní občanská vybavenost včetně základní školy, školky, obchodu, pošty, restaurací a kaváren. Dálnice Praha–Hradec Králové je vzdálena přibližně 10 km, což zajišťuje pohodlné spojení do větších měst.
Tento dům je vhodný pro zájemce hledající kvalitní, moderní a kompletně vybavené bydlení v klidné lokalitě s dostatkem soukromí a možností relaxace v přírodním prostředí. V případě zájmu o prohlídku této výjimečné nemovitosti nás neváhejte kontaktovat.
| Cena: | 14 490 000 Kč |
| Datum k nastěhování: | 30.06.2026 |
| Číslo zakázky: | REALITYMIX-134982 |
Podrobné informace
- Poloha objektu: samostatný
- Druh objektu: dřevěná
- Stav objektu: novostavba
- Počet podlaží objektu: 1
- Typ domu: přízemní
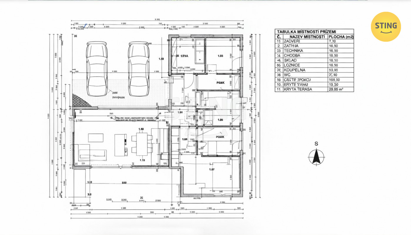
- Zastavěná plocha: 188 m²
- Plocha parcely: 1321 m²
- Zahrada: 986 m²
- Užitná plocha: 101 m²
- Terasa: 35 m²
- Ostatní: Plot
- Umístění objektu: polosamota
- Doprava: silnice, autobus
- Občanská vybavenost: Škola, Školka, Pošta, Kompletní síť obchodů a služeb
- Elektřina: Elektro - 230 V
- Voda: Voda - dálkový vodovod
- Telekomunikace: Internet
- Topení: Lokální - tuhá paliva
- Odpad: Kanalizace, ČOV pro celý objekt
- Energetická náročnost budovy: B - Úsporná
- Energetický ukazatel podle vyhlášky: č. 148/2007 Sb.
Právní rádce
-
Detail
V tomto článku shrneme nejdůležitější věci, které byste si měli promyslet, pokud se chystáte prodat svou nemovitost a chcete, abyste s kupujícím nemusel následně řešit vzniklé problémy.
Jako prodávající nesete rizika spojená nejen se samotným obchodem, ale i se stavem nemovitosti v době prodeje a pro minimalizaci rizik, je dobré se zamyslet nad uvedenými oblastmi.
-
Detail
Realitní makléř má své nezastupitelné místo v realitním obchodu. Realitním makléřem nemyslím nevzdělané jelito, které absolvovalo dvoudenní školení a ví, jak se nahraje inzerát na inzertní portál.
Realitním makléřem, který se Vám skutečně vyplatí, je zkušený profesionál, který je schopen Vám dobře poradit jak prodat za co nejvíc a s nejmenším rizikem a hlavně je Vás schopen obratně provést celým realitním obchodem.
Mapa
Podobné nemovitosti
Prodej - dům/vila, 115 m²
Trávní, Slezské Předměstí, Hradec Králové
10 390 000 Kč
Prodej - dům/vila, 240 m²
Hradec Králové
10 750 000 Kč
Prodej - dům/vila, 191 m²
Poštovní, Březhrad, Hradec Králové
11 904 000 Kč
Prodej - dům/vila, 382 m²
Palackého, Chlumec nad Cidlinou III, Hradec Králové
11 790 000 Kč