Prodej bytu, 2+1, 83 m²
Durychova, Nový Hradec Králové, Hradec Králové
6 299 000 KčProdej bytu, 2+1, 83 m²
Durychova, Nový Hradec Králové, Hradec Králové
PRODEJ BYTU 2+1, 83.6 m2, Hradec Králové
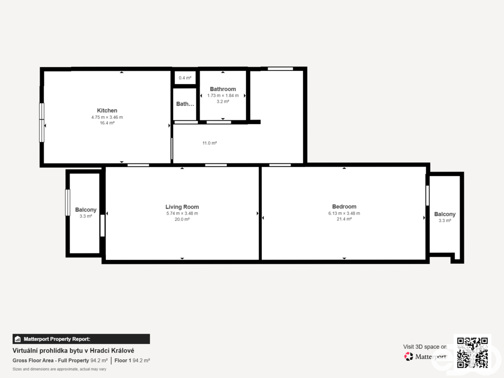
Nabízíme ke koupi světlý a vzdušný byt 2+1 v žádané lokalitě Hradce Králové, na adrese Durychova 1387/14. Byt se nachází v 7. patře z 11 a nabízí hezké výhledy do okolí města.
Byt zaujme velkorysou dispozicí, prostornými místnostmi a vyššími stropy (267 cm), které jsou nadstandardem oproti běžným panelovým domům. Oba pokoje mají vlastní lodžii, přičemž lodžie u obývacího pokoje byla v rámci revitalizace domu zvětšena a zasklena.
Bytové jádro je zděné, rekonstrukce proběhla přibližně v roce 2010. Byt je v udržovaném a funkčním stavu.
Dům prošel kompletní revitalizací v roce 2025 – zateplení, nová fasáda, vchodový portál, výtahy a úpravy lodžií výrazně zvyšují komfort bydlení i hodnotu nemovitosti.
Investiční příležitost i bydlení do budoucna
V bytě aktuálně bydlí spolehliví nájemníci s nájemní smlouvou do 30. 4. 2026, kteří mají zájem pokračovat v nájmu. Byt je tak vhodný jako investiční nemovitost, případně k vlastnímu bydlení.
K dispozici od 1. 5. 2026 nebo dle dohody.
Lokalita a občanská vybavenost:
- obchod s potravinami v docházkové vzdálenosti
- zastávka MHD
- zeleň a místa pro relax a procházky
- příjemným bonusem je kadeřnictví přímo ve vedlejším vchodě domu
Byt představuje ideální kombinaci prostoru, lokality a flexibility využití.
Doporučujeme osobní prohlídku.
| Cena: | 6 299 000 Kč |
| Datum k nastěhování: | 01.05.2026 |
| Dispozice/podlahová plocha: | 2+1/83 m² |
| Číslo zakázky: | REALITYMIX-3451 |
Podrobné informace
- Dispozice bytu: 2+1
- Číslo podlaží v domě: 7
- Počet podlaží objektu: 11
- Užitná plocha: 83 m²
- Celková podlahová plocha: 83 m²
- Druh objektu: panelová
- Stav objektu: dobrý
- Vlastnictví: osobní
- Lodžie: 4 m²
- Sklep: 2 m²
- Vybaveno: ano
- Umístění objektu: sídliště
- Doprava: vlak, dálnice, silnice, MHD, autobus
- Elektřina: Elektro - 230 V
- Voda: Voda - dálkový vodovod
- Telekomunikace: Internet
- Plyn: Plynovod
- Odpad: Kanalizace
- Ostatní rozvody: Kabelová televize, Kabelové rozvody
- Energetická náročnost budovy: B - Velmi úsporná
- Energetický ukazatel podle vyhlášky: č. 264/2020 Sb.
Právní rádce
-
Detail
V tomto článku shrneme nejdůležitější věci, které byste si měli promyslet, pokud se chystáte prodat svou nemovitost a chcete, abyste s kupujícím nemusel následně řešit vzniklé problémy.
Jako prodávající nesete rizika spojená nejen se samotným obchodem, ale i se stavem nemovitosti v době prodeje a pro minimalizaci rizik, je dobré se zamyslet nad uvedenými oblastmi.
-
Detail
Realitní makléř má své nezastupitelné místo v realitním obchodu. Realitním makléřem nemyslím nevzdělané jelito, které absolvovalo dvoudenní školení a ví, jak se nahraje inzerát na inzertní portál.
Realitním makléřem, který se Vám skutečně vyplatí, je zkušený profesionál, který je schopen Vám dobře poradit jak prodat za co nejvíc a s nejmenším rizikem a hlavně je Vás schopen obratně provést celým realitním obchodem.
Prodáváte nemovitost a potřebujete zjistit její reálnou hodnotu?
Zjistit reálnou cenuVývoj průměrné ceny za m2 v lokalitě Hradec Králové
Prodáváte nemovitost a potřebujete zjistit její reálnou hodnotu?
Zjistit reálnou cenuMapa
Podobné nemovitosti
Prodej bytu, 2+1, 56 m²
Severní, Slezské Předměstí, Hradec Králové
4 450 000 Kč
Prodej bytu, 2+1, 64 m²
Baarova, Pražské Předměstí, Hradec Králové
5 490 000 Kč
Prodej bytu, 2+kk, 72 m²
Meruňková, Hradec Králové
6 490 000 Kč
Prodej bytu, 2+kk, 70 m²
Meruňková, Plotiště nad Labem, Hradec Králové
6 990 000 Kč