Pronájem bytu, 2+kk, 56 m²
Jiráskova, Horní Planá, Český Krumlov
21 000 Kč (za měsíc)Pronájem bytu, 2+kk, 56 m²
Jiráskova, Horní Planá, Český Krumlov
21 000 Kč
(za měsíc)
B
Velmi úsporná
Pronájem bytu 2+kk v novostavbě bytového domu, Horní Planá
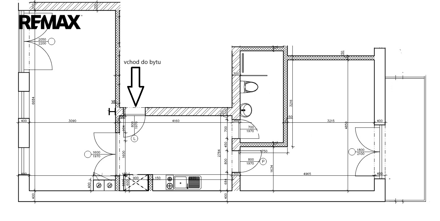
Nabízím k pronájmu moderní byt o dispozici 2+kk a užitné ploše 56 m² v Horní Plané. Byt se nachází v nově postaveném bytovém domě, což nájemníkům zajišťuje klidné bydlení s vysokou mírou soukromí. Dům je postaven z kvalitních materiálů s důrazem na energetickou úspornost. Okna jsou osazena izolačními trojskly a o tepelnou pohodu se stará teplovodní podlahové vytápění napojené na úsporné tepelné čerpadlo, což garantuje nízké provozní náklady.
Dispozice bytu je prakticky členěná. Vstupními dveřmi vejdete přímo do hlavního prostoru s kuchyňským koutem, který nabízí dostatek místa pro jídelní stůl. Po pravé straně se nachází obývací pokoj, kterému dominuje francouzské okno zajišťující dostatek denního světla. V levé části bytu se nachází moderně řešená koupelna. Ta je vybavena luxusní hlavovou sprchou Grohe Rainshower s přídavnou masážní tryskou. Ohřev vody zajišťuje chytrý bojler s funkcí samoučení, který optimalizuje spotřebu podle vašich potřeb. Vedle koupelny je vstup do ložnice, ze které je přístup na balkón orientovaný do klidné zahrady. Celý interiér působí velmi světlým a vzdušným dojmem.
Bezpečnost a pohodlí zvyšuje vstupní intercom s možností napojení přímo na váš mobilní telefon. Velkou výhodou je také internetové připojení, které je již zahrnuto v ceně nájmu.
Lokalita Horní Plané nabízí kompletní občanskou vybavenost a těsnou blízkost šumavské přírody i Lipna. Bydlení v této novostavbě je vhodné pro zájemce, kteří hledají dlouhodobý pronájem v kvalitním standardu a klidném prostředí rodinného domu. Byt je připraven k okamžitému nastěhování.
Měsíční nájemné: 21.000 Kč
Energie 2.000 Kč (včetně elektřiny)
Vratná jistina: 21.000 Kč
Poplatek RK: 21.000 Kč + DPH
Pokud vás tato nabídka zaujala, kontaktujte mě pro domluvení prohlídky. Pronajímající si vyhrazuje právo vybrat nájemce na základě jím zvolených kritérií.
Dispozice bytu je prakticky členěná. Vstupními dveřmi vejdete přímo do hlavního prostoru s kuchyňským koutem, který nabízí dostatek místa pro jídelní stůl. Po pravé straně se nachází obývací pokoj, kterému dominuje francouzské okno zajišťující dostatek denního světla. V levé části bytu se nachází moderně řešená koupelna. Ta je vybavena luxusní hlavovou sprchou Grohe Rainshower s přídavnou masážní tryskou. Ohřev vody zajišťuje chytrý bojler s funkcí samoučení, který optimalizuje spotřebu podle vašich potřeb. Vedle koupelny je vstup do ložnice, ze které je přístup na balkón orientovaný do klidné zahrady. Celý interiér působí velmi světlým a vzdušným dojmem.
Bezpečnost a pohodlí zvyšuje vstupní intercom s možností napojení přímo na váš mobilní telefon. Velkou výhodou je také internetové připojení, které je již zahrnuto v ceně nájmu.
Lokalita Horní Plané nabízí kompletní občanskou vybavenost a těsnou blízkost šumavské přírody i Lipna. Bydlení v této novostavbě je vhodné pro zájemce, kteří hledají dlouhodobý pronájem v kvalitním standardu a klidném prostředí rodinného domu. Byt je připraven k okamžitému nastěhování.
Měsíční nájemné: 21.000 Kč
Energie 2.000 Kč (včetně elektřiny)
Vratná jistina: 21.000 Kč
Poplatek RK: 21.000 Kč + DPH
Pokud vás tato nabídka zaujala, kontaktujte mě pro domluvení prohlídky. Pronajímající si vyhrazuje právo vybrat nájemce na základě jím zvolených kritérií.
| Cena: | 21 000 Kč / (za měsíc) |
| Poznámka: | + zálohy na energie |
| Datum k nastěhování: | 15.02.2026 |
| Dispozice/podlahová plocha: | 2+kk/56 m² |
| Číslo zakázky: | REALITYMIX-431923 |
Podrobné informace
- Dispozice bytu: 2+kk
- Číslo podlaží v domě: 2
- Počet podlaží objektu: 2
- Užitná plocha: 56 m²
- Celková podlahová plocha: 56 m²
- Druh objektu: smíšená
- Stav objektu: novostavba
- Vlastnictví: osobní
- Balkon: 7 m²
- Umístění objektu: centrum obce
- Plyn: Plynovod
- Odpad: Kanalizace
- Energetická náročnost budovy: B - Velmi úsporná
- Energetický ukazatel podle vyhlášky: č. 264/2020 Sb.
Mapa
* Umístění na mapě je na základě GPS informací dodaných realitní kanceláří.
* Pozice na mapě je pouze orientační.
Podobné nemovitosti
Pronájem bytu, 2+kk, 55 m²
Za Jitonou, Latrán, Český Krumlov
22 000 Kč za měsíc
Pronájem bytu, 2+kk, 54 m²
Jiráskova, Horní Planá, Český Krumlov
18 000 Kč za měsíc
Pronájem bytu, 3+1, 70 m²
Světlík, Český Krumlov
8 500 Kč za měsíc
Pronájem bytu, 2+kk, 55 m²
Za Jitonou, Latrán, Český Krumlov
22 000 Kč za měsíc