Prodej - dům/vila, 350 m²
Havlíčkova, Horní Moštěnice, Přerov
Cena na vyžádáníProdej - dům/vila, 350 m²
Havlíčkova, Horní Moštěnice, Přerov
Rodinný dům po rekonstrukci, až 3 bytové jednotky, garáž
Hledáte prostorný, technicky kvalitní dům, který nabízí okamžité bydlení, možnost pronájmu i podnikání, a to vše s nízkými provozními náklady?
Pak je tento dům v obci Horní Moštěnice přesně pro vás.
Základní informace
• vícegenerační rodinný dům
• užitná plocha cca 350 m²
• pozemek cca 781 m²
• slepá ulice – klid, soukromí, minimum provozu
• energetická náročnost B – velmi úsporná
• dům po rozsáhlé rekonstrukci
Dispozice – hlavní konkurenční výhoda
Dům je reálně dělitelný až na 3 samostatné bytové jednotky, případně ideální pro kombinaci bydlení + podnikání.
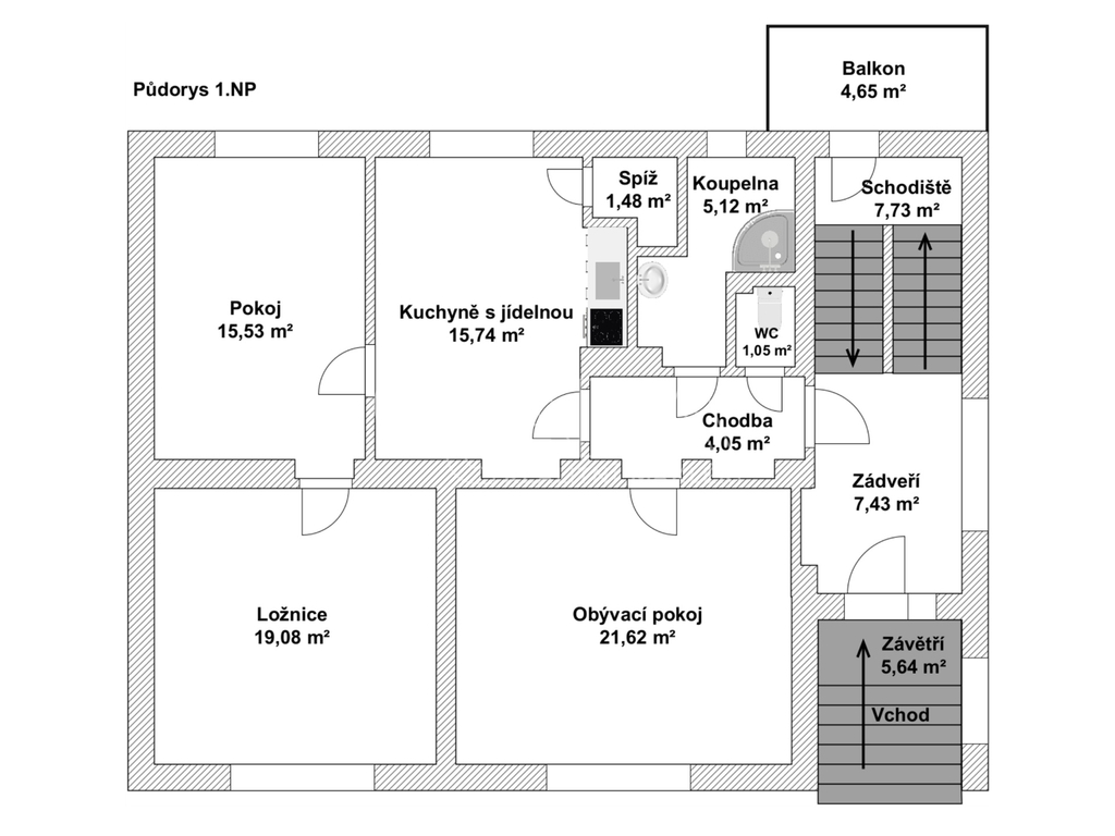
Přízemí – byt 3+1
• kuchyně se špajzem
• tři obytné pokoje
• koupelna se sprchovým koutem
• samostatné WC
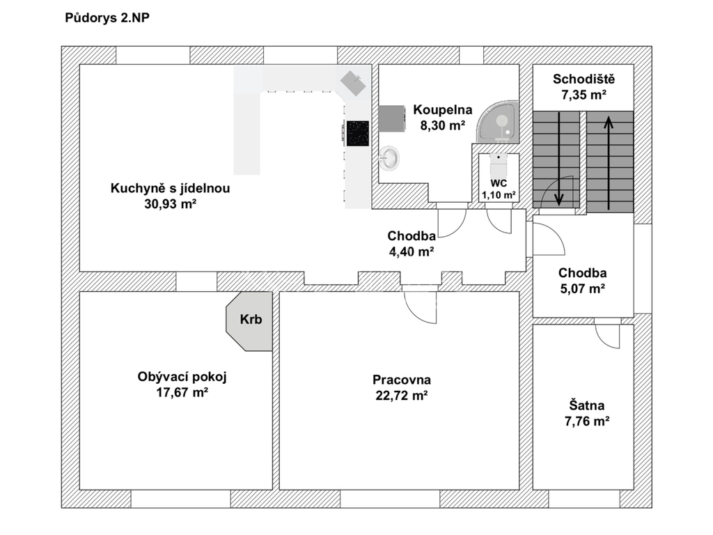
1. patro – byt 3+kk
• prostorná kuchyně s jídelnou
• obývací pokoj s krbem
• šatna
• koupelna se sprchovým koutem
• samostatné WC
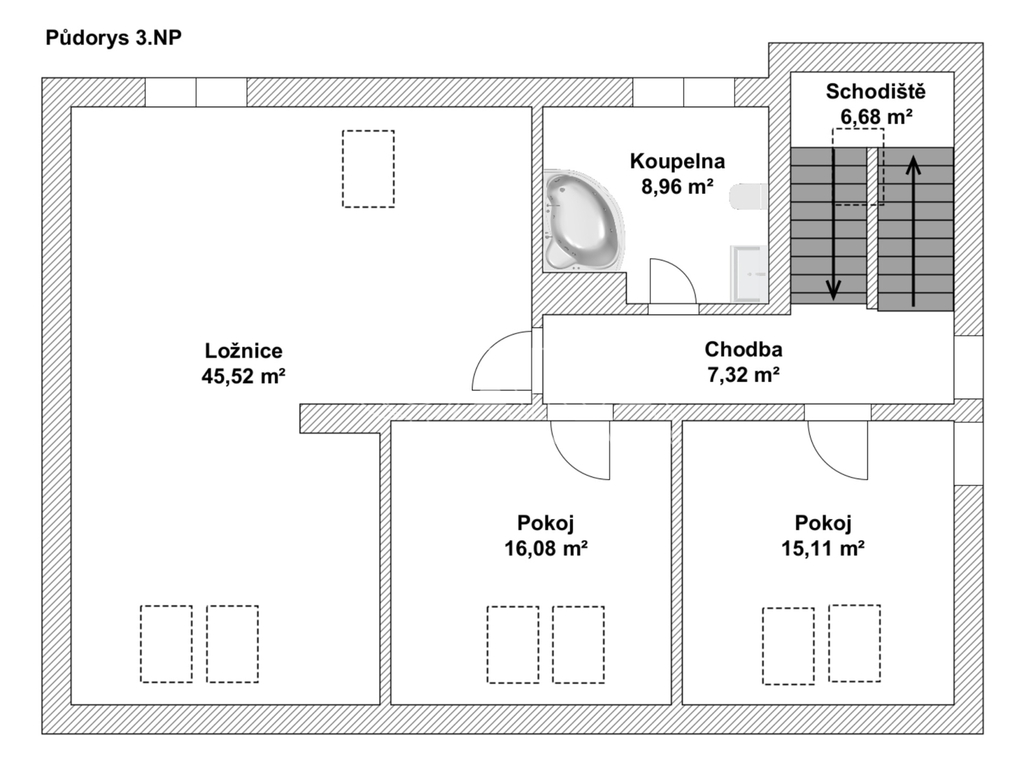
Podkroví – samostatná bytová jednotka / mezonet
• dva samostatné pokoje
• plus velký pokoj s přípravou na kuchyňský kout
• koupelna s vanou, wc
Ideální řešení pro:
• vícegenerační bydlení
• samostatný pronájem bytů
• kanceláře, služby
• sídlo firmy s bydlením
Technický stav a vybavení
• kompletní rekonstrukce rozvodů (elektřina, voda, odpady)
• tepelné čerpadlo (2023)
• fotovoltaika (2023)
• zateplená fasáda (12–15 cm)
• masivní zdivo cca 50 cm
• zateplené sklepy i štíty
• pálená střešní krytina Tondach
• plastová okna s dvojskly
• internet + datové rozvody v každé místnosti
Výsledkem jsou velmi nízké provozní náklady, a to i vzhledem k velikosti domu.
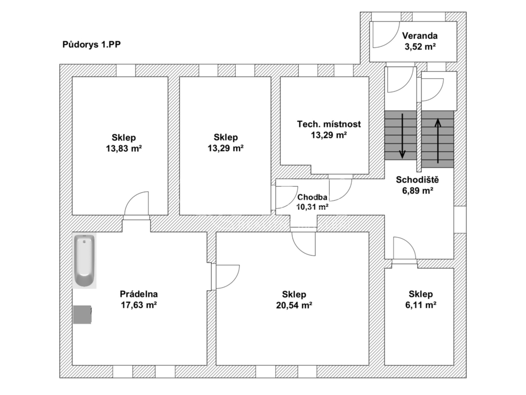
Sklep a hospodářské zázemí
• sklepní prostory cca 100 m²
• technická místnost
• prádelna
• sklad
• výborné zázemí pro provoz domu i podnikání
Díky velkorysé ploše se zde navíc přímo nabízí možnost vybudování domácí posilovny nebo wellness zóny.
Exteriér a pozemek
• uzavřený dvůr – maximální soukromí
• garáž
• sklad a hospodářská místnost
• zahrada 258m2
• bezproblémové parkování přímo na pozemku
Lokalita
• plná občanská vybavenost v obci
• školka, škola, lékař, obchody
• vlak, autobus i MHD v docházkové vzdálenosti
• Přerov pár minut jízdy, dobrá dostupnost z Olomouce – a s novou dálnicí ještě lepší
Potenciál
• k rodinnému bydlení
• možnost samostatného pronájmu jednotlivých bytů
• vhodné pro investory, podnikatele i kombinaci bydlení + příjem
• energetická třída B = dlouhodobě udržitelný provoz
Velký, energeticky úsporný vícegenerační dům po rekonstrukci, který nabízí okamžité bydlení, silný investiční potenciál a flexibilní využití v klidné lokalitě.
V případě zájmu o více informací, příp. o prohlídku mne prosím kontaktujte. Cena na požádání.
| Cena: | Cena na vyžádání |
| Poznámka: | cena u makléře |
| Číslo zakázky: | REALITYMIX-18734 |
Podrobné informace
- Poloha objektu: řadový
- Druh objektu: cihlová
- Stav objektu: velmi dobrý
- Počet podlaží objektu: 3
- Typ domu: patrový
- Zastavěná plocha: 148 m²
- Plocha parcely: 781 m²
- Zahrada: 258 m²
- Užitná plocha: 350 m²
- Sklep: 100 m²
- Doprava: vlak, dálnice, silnice, autobus
- Komunikace: betonová
- Voda: Voda - dálkový vodovod
- Telekomunikace: Internet
- Plyn: Plynovod
- Odpad: Kanalizace
- Energetická náročnost budovy: B - Velmi úsporná
- Energetický ukazatel podle vyhlášky: č. 264/2020 Sb.
Právní rádce
-
Detail
V tomto článku shrneme nejdůležitější věci, které byste si měli promyslet, pokud se chystáte prodat svou nemovitost a chcete, abyste s kupujícím nemusel následně řešit vzniklé problémy.
Jako prodávající nesete rizika spojená nejen se samotným obchodem, ale i se stavem nemovitosti v době prodeje a pro minimalizaci rizik, je dobré se zamyslet nad uvedenými oblastmi.
-
Detail
Realitní makléř má své nezastupitelné místo v realitním obchodu. Realitním makléřem nemyslím nevzdělané jelito, které absolvovalo dvoudenní školení a ví, jak se nahraje inzerát na inzertní portál.
Realitním makléřem, který se Vám skutečně vyplatí, je zkušený profesionál, který je schopen Vám dobře poradit jak prodat za co nejvíc a s nejmenším rizikem a hlavně je Vás schopen obratně provést celým realitním obchodem.