Pronájem - kanceláře, 105 m²
Masarykova, Hluboká nad Vltavou, České Budějovice
22 000 Kč (za měsíc)Pronájem - kanceláře, 105 m²
Masarykova, Hluboká nad Vltavou, České Budějovice
22 000 Kč
(za měsíc)
C
Úsporná
Pronájem komerční Kanceláře, 123㎡
Exkluzivně vám nabízíme pronájem nebytového prostoru v centru města Hluboká nad Vltavou v citlivě zrekonstruované budově bývalé restaurace a ubytovacího zařízení Bakalář.
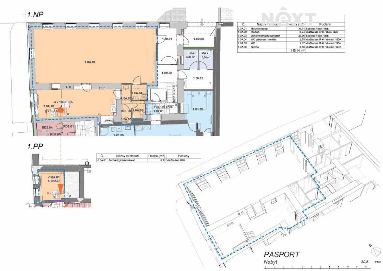
Vchod do nebytového prostoru je situován z ulice Masarykova. Užitná plocha činí 123,46 m2. Dle projektové dokumentace bude mít prostor následující podobu: 1.NP - předsíň (2,94 m2), hlavní místnost (79,74 m2), 2x WC (2,75 m2 a 1,17 m2), sprcha (2,58 m2), denní místnost a kancelář (25,96 m2). 1.PP - technologická místnost (8,32 m2). Vytápění a ohřev vody je zajištěn tepelným čerpadlem (vzduch, voda). Vstup do budovy bude bezbariérový.
Aktuálně na nemovitosti probíhají stavební práce. K nastěhování bude prostor připraven ke 30.1.2026.
Měsíční náklady spojené s užíváním prostoru činí: 22.000,- Kč nájem + energie dle potřeb nájemce, přičemž náklady na elektřinu budou sníženy díky vlastní fotovoltaické elektrárně. Internet bude přepsán na nového nájemce. Provize RK činí jeden měsíční nájem vč. DPH, vratná kauce je pronajímatelem stanovena na 22.000,- Kč. Zároveň zde nabízíme možnost pronájmu parkovacího stání / garáže. Více informací poskytne RK.
Prostor je díky své dispozici vhodný pro vybudování kanceláří či pro maloobchodní sektor. Doporučujeme prohlídku nemovitosti. Pro komunikaci uvádějte evidenční číslo zakázky N109811.
Vchod do nebytového prostoru je situován z ulice Masarykova. Užitná plocha činí 123,46 m2. Dle projektové dokumentace bude mít prostor následující podobu: 1.NP - předsíň (2,94 m2), hlavní místnost (79,74 m2), 2x WC (2,75 m2 a 1,17 m2), sprcha (2,58 m2), denní místnost a kancelář (25,96 m2). 1.PP - technologická místnost (8,32 m2). Vytápění a ohřev vody je zajištěn tepelným čerpadlem (vzduch, voda). Vstup do budovy bude bezbariérový.
Aktuálně na nemovitosti probíhají stavební práce. K nastěhování bude prostor připraven ke 30.1.2026.
Měsíční náklady spojené s užíváním prostoru činí: 22.000,- Kč nájem + energie dle potřeb nájemce, přičemž náklady na elektřinu budou sníženy díky vlastní fotovoltaické elektrárně. Internet bude přepsán na nového nájemce. Provize RK činí jeden měsíční nájem vč. DPH, vratná kauce je pronajímatelem stanovena na 22.000,- Kč. Zároveň zde nabízíme možnost pronájmu parkovacího stání / garáže. Více informací poskytne RK.
Prostor je díky své dispozici vhodný pro vybudování kanceláří či pro maloobchodní sektor. Doporučujeme prohlídku nemovitosti. Pro komunikaci uvádějte evidenční číslo zakázky N109811.
| Cena: | 22 000 Kč / (za měsíc) |
| Číslo zakázky: | REALITYMIX-109811 |
Podrobné informace
- Plocha kanceláří: 105 m²
- Druh objektu: cihlová
- Stav objektu: po rekonstrukci
- Druh prostor: Kanceláře
- Umístění objektu: centrum obce
- Energetická náročnost budovy: C - Úsporná
- Energetický ukazatel podle vyhlášky: č. 78/2013 Sb.
Mapa
* Umístění na mapě je na základě GPS informací dodaných realitní kanceláří.
* Pozice na mapě je pouze orientační.
Podobné nemovitosti
Pronájem - kanceláře, 142 m²
Hlinská, České Budějovice 4, České Budějovice
19 000 Kč za měsíc
Pronájem - kanceláře, 143 m²
Krajinská, České Budějovice 1, České Budějovice
18 000 Kč za měsíc
Pronájem - kanceláře, 25 m²
Lannova tř, České Budějovice 6, České Budějovice
120 Kč za m2/měsíc
Pronájem - kanceláře, 42 m²
Pekárenská, České Budějovice 4, České Budějovice
4 500 Kč za měsíc