Prodej bytu, 3+kk, 81 m²
Karla Hynka Máchy, Místek, Frýdek-Místek
6 000 000 KčProdej bytu, 3+kk, 81 m²
Karla Hynka Máchy, Místek, Frýdek-Místek
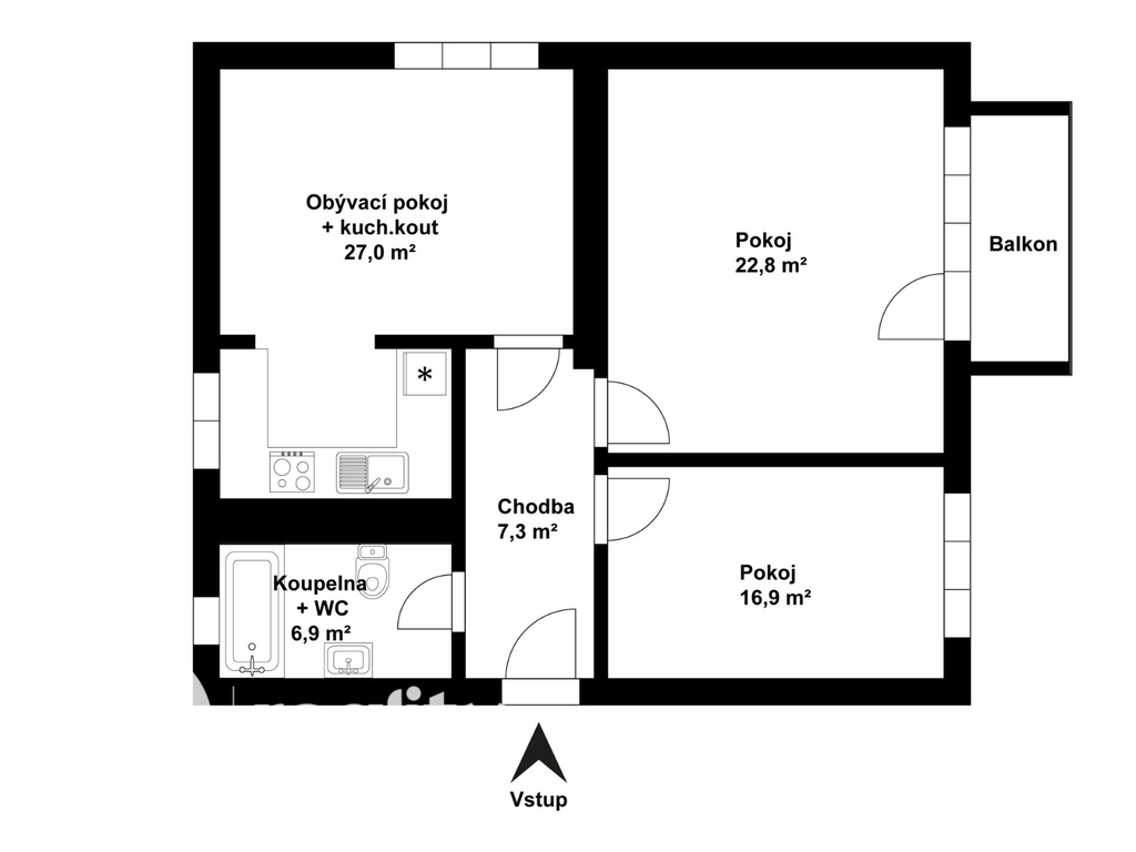
Prodej byt 3+kk, 81 m2, Frýdek-Místek, ul. Karla Hynka Máchy
Hledáte byt, který má „to, co lidé chtějí“? Poctivá cihlová zástavba, klidný dům po revitalizaci (zateplení, plastová okna) a k tomu velkorysá výměra 81 m² – přesně takový si nyní můžete koupit.
Byt prošel kompletní rekonstrukcí, elektroinstalace v mědi, sadrokartonové podhledy, led osvětlení, nové omítky, sanita, zkrátka vše je hotové a ve stavu jako nové.
Dispozice je řešena jako 3+kk, nachází se v 1. podlaží, pokoje jsou neprůchozí, takže každý člen domácnosti má své soukromí. Jako příjemný bonus je tu balkon.
Interiér je laděný do elegantního a nadčasového stylu bílá / dub – působí čistě, útulně a moderně, a zároveň se snadno doladí jakýmkoli nábytkem a doplňky. Byt má příjemnou atmosféru, kde se budete cítit doma hned po příchodu.
Lokalita? Tady je to o pohodlí. Doslova pár metrů od domu máte řeku a cyklostezku – ideální na procházky, běh nebo kolo. A stejně tak pár metrů je i nákupní středisko FRÝDA, takže každodenní nákupy vyřídíte během chvilky. Celkově je tu skvělá dostupnost služeb i města pěšky během pár minut.
Parkování je před domem, jako běžně v lokalitě.
Shrnutí hlavních benefitů:
+ dispozice 3+kk
+ 81 m² + balkon
+ cihlový dům po revitalizaci (zateplení, plastová okna)
+ 1. podlaží
+ neprůchozí pokoje
+ moderní dekor bílá / dub
+ řeka, cyklostezka, nákupní centrum FRÝDA doslova pár metrů od domu - vše důležité v docházkové vzdálenosti !
Pokud chcete byt, který spojuje prostor, praktičnost a perfektní polohu pro každodenní život i volný čas, tohle je velmi silný kandidát. Pro více informací a domluvení prohlídky mě neváhejte kontaktovat.
| Cena: | 6 000 000 Kč |
| Dispozice/podlahová plocha: | 3+kk/81 m² |
| Číslo zakázky: | REALITYMIX-1858 |
Podrobné informace
- Dispozice bytu: 3+kk
- Číslo podlaží v domě: 1
- Počet podlaží objektu: 4
- Užitná plocha: 81 m²
- Celková podlahová plocha: 81 m²
- Druh objektu: cihlová
- Stav objektu: po rekonstrukci
- Vlastnictví: osobní
- Balkon: 1 m²
- Doprava: vlak, dálnice, silnice, MHD, autobus
- Elektřina: Elektro - 230 V
- Voda: Voda - dálkový vodovod
- Odpad: Kanalizace
- Energetická náročnost budovy: G - Mimořádně nehospodárná
- Energetický ukazatel podle vyhlášky: č. 264/2020 Sb.
Právní rádce
-
Detail
V tomto článku shrneme nejdůležitější věci, které byste si měli promyslet, pokud se chystáte prodat svou nemovitost a chcete, abyste s kupujícím nemusel následně řešit vzniklé problémy.
Jako prodávající nesete rizika spojená nejen se samotným obchodem, ale i se stavem nemovitosti v době prodeje a pro minimalizaci rizik, je dobré se zamyslet nad uvedenými oblastmi.
-
Detail
Realitní makléř má své nezastupitelné místo v realitním obchodu. Realitním makléřem nemyslím nevzdělané jelito, které absolvovalo dvoudenní školení a ví, jak se nahraje inzerát na inzertní portál.
Realitním makléřem, který se Vám skutečně vyplatí, je zkušený profesionál, který je schopen Vám dobře poradit jak prodat za co nejvíc a s nejmenším rizikem a hlavně je Vás schopen obratně provést celým realitním obchodem.