Prodej - dům/vila, 204 m²
Dolní Habartice, Děčín
8 200 000 KčProdej - dům/vila, 204 m²
Dolní Habartice, Děčín
Prodej rodinného domu 204 m2, pozemek 690 m2
Nemovitost zaujme velmi dobrým technickým stavem, nízkými provozními náklady a příjemným zázemím pro rodinné bydlení bez nutnosti dalších investic.
Na pozemku se nachází pergola s venkovním posezením, grilem a udírnou, která vytváří ideální prostor pro relaxaci i společenská setkání.
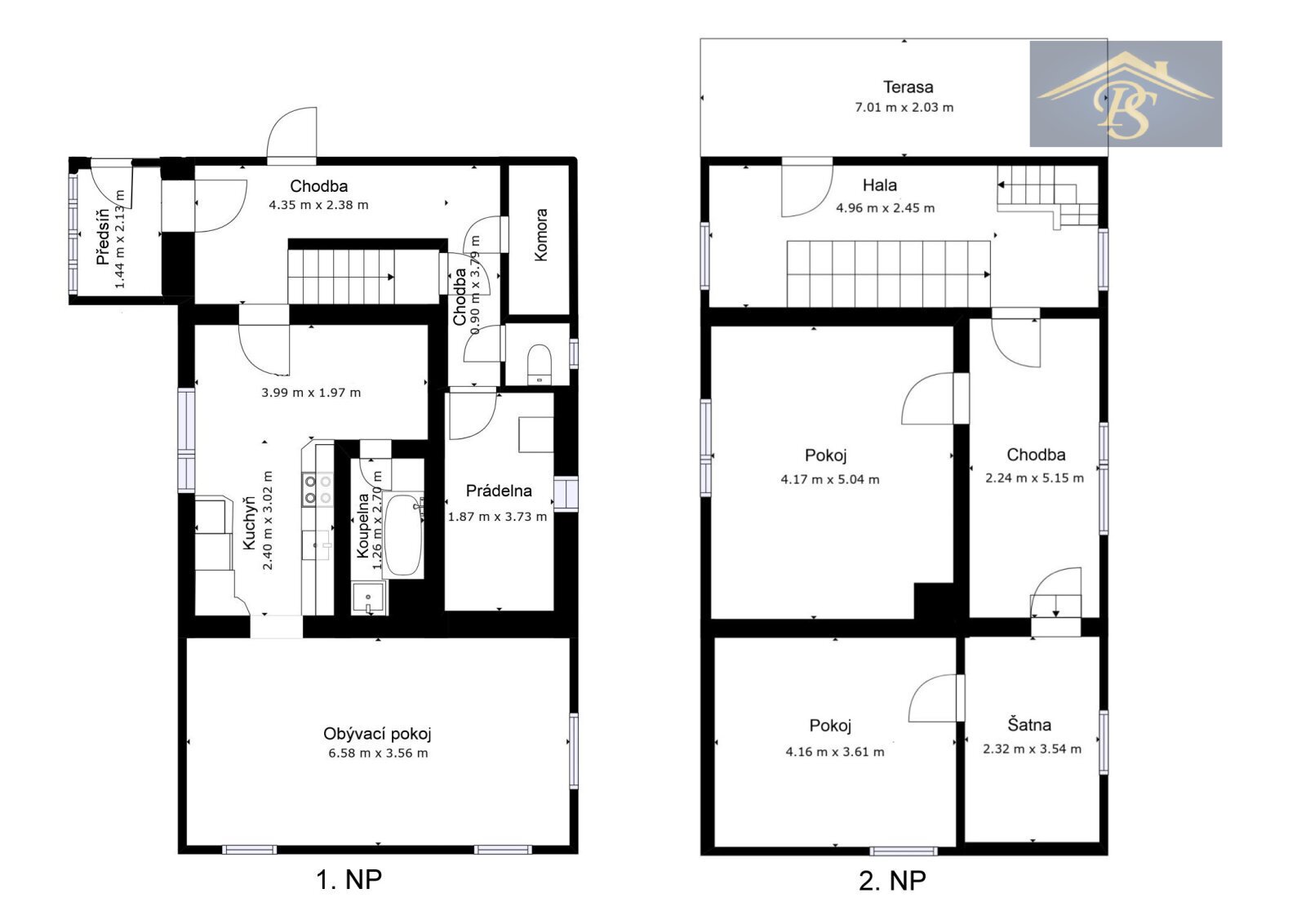
Dispoziční řešení domu:
Přízemí nabízí praktické zádveří, chodbu se vstupem do garáže, samostatnou kuchyni, světlý obývací pokoj s jídelnou, koupelnu, oddělené WC, spíž, technickou místnost a prádelnu s potenciálem vybudování druhé koupelny.
V patře jsou tři samostatné pokoje propojené chodbou. Dřevěné schodiště pokračuje na půdu, která poskytuje další možnosti rozšíření obytné plochy.
Velkým benefitem je prostorná garáž s připraveným vstupem z patra pro budoucí realizaci střešní terasy.
Technický stav a vybavení:
Dům je zateplený včetně střechy, osazen plastovými okny s dvojskly a elektroinstalací v mědi. Odpad je řešen plastovým tříkomorovým septikem.
O komfortní vytápění se stará kondenzační plynový kotel Prestige 18 (cca 7 let) doplněný krbovými kamny s výměníkem v obývacím pokoji.
Měsíční náklady na bydlení činí přibližně 6.000 Kč.
V posledních 2 letech proběhla nákladná a rozsáhlá rekonstrukce:
nový hlavní přívod elektro a jističe
komín s nerezovou vložkou
zateplení střechy (16 cm foukaná izolace)
nové interiérové dveře (masivní, prosklené i plné)
nové kovové vchodové dveře
nové vinylové podlahy (obývací pokoj, kuchyně)
kompletně nová koupelna
kompletně nová kuchyně včetně spotřebičů
nová vjezdová vrata do garáže včetně střechy
sítě proti hmyzu v oknech
kompletní oplocení pozemku, a mnoho dalšího
Lokalita:
Dolní Habartice se rozkládají v malebném prostředí Českého středohoří, přibližně 9 km od Děčína. Obec nabízí základní občanskou vybavenost — potraviny, mateřskou a základní školu, sportovní vyžití i restauraci. Dopravní dostupnost je zajištěna autobusovými i vlakovými spoji.
Nemovitost představuje ideální volbu pro klienty hledající klidné rodinné bydlení v dobrém technickém stavu s minimálními budoucími investicemi.
Veškeré informace týkající se domu a rozsahu rekonstrukce jsou k nahlédnutí u makléřky. PENB se zpracovává.
| Cena: | 8 200 000 Kč |
| Poznámka: | Cena k jednání - pojďme najít řešení, které bude vyhovovat oběma stranám |
| Číslo zakázky: | REALITYMIX-2026007 |
Podrobné informace
- Poloha objektu: samostatný
- Druh objektu: cihlová
- Stav objektu: velmi dobrý
- Počet podlaží objektu: 2
- Typ domu: patrový
- Zastavěná plocha: 204 m²
- Plocha parcely: 690 m²
- Zahrada: 690 m²
- Užitná plocha: 204 m²
- Umístění objektu: klidná část obce
- Komunikace: asfaltová
- Elektřina: Elektro - 230 V, Elektro - 400 V
- Voda: Voda - dálkový vodovod
- Plyn: Plynovod
- Topení: Lokální - plynové
- Energetická náročnost budovy: F - Velmi nehospodárná
- Energetický ukazatel podle vyhlášky: č. 264/2020 Sb.
Právní rádce
-
Detail
V tomto článku shrneme nejdůležitější věci, které byste si měli promyslet, pokud se chystáte prodat svou nemovitost a chcete, abyste s kupujícím nemusel následně řešit vzniklé problémy.
Jako prodávající nesete rizika spojená nejen se samotným obchodem, ale i se stavem nemovitosti v době prodeje a pro minimalizaci rizik, je dobré se zamyslet nad uvedenými oblastmi.
-
Detail
Realitní makléř má své nezastupitelné místo v realitním obchodu. Realitním makléřem nemyslím nevzdělané jelito, které absolvovalo dvoudenní školení a ví, jak se nahraje inzerát na inzertní portál.
Realitním makléřem, který se Vám skutečně vyplatí, je zkušený profesionál, který je schopen Vám dobře poradit jak prodat za co nejvíc a s nejmenším rizikem a hlavně je Vás schopen obratně provést celým realitním obchodem.