Prodej bytu, 3+kk, 177 m²
Lázeňský vrch, Staré Splavy, Česká Lípa
14 990 000 KčProdej bytu, 3+kk, 177 m²
Lázeňský vrch, Staré Splavy, Česká Lípa
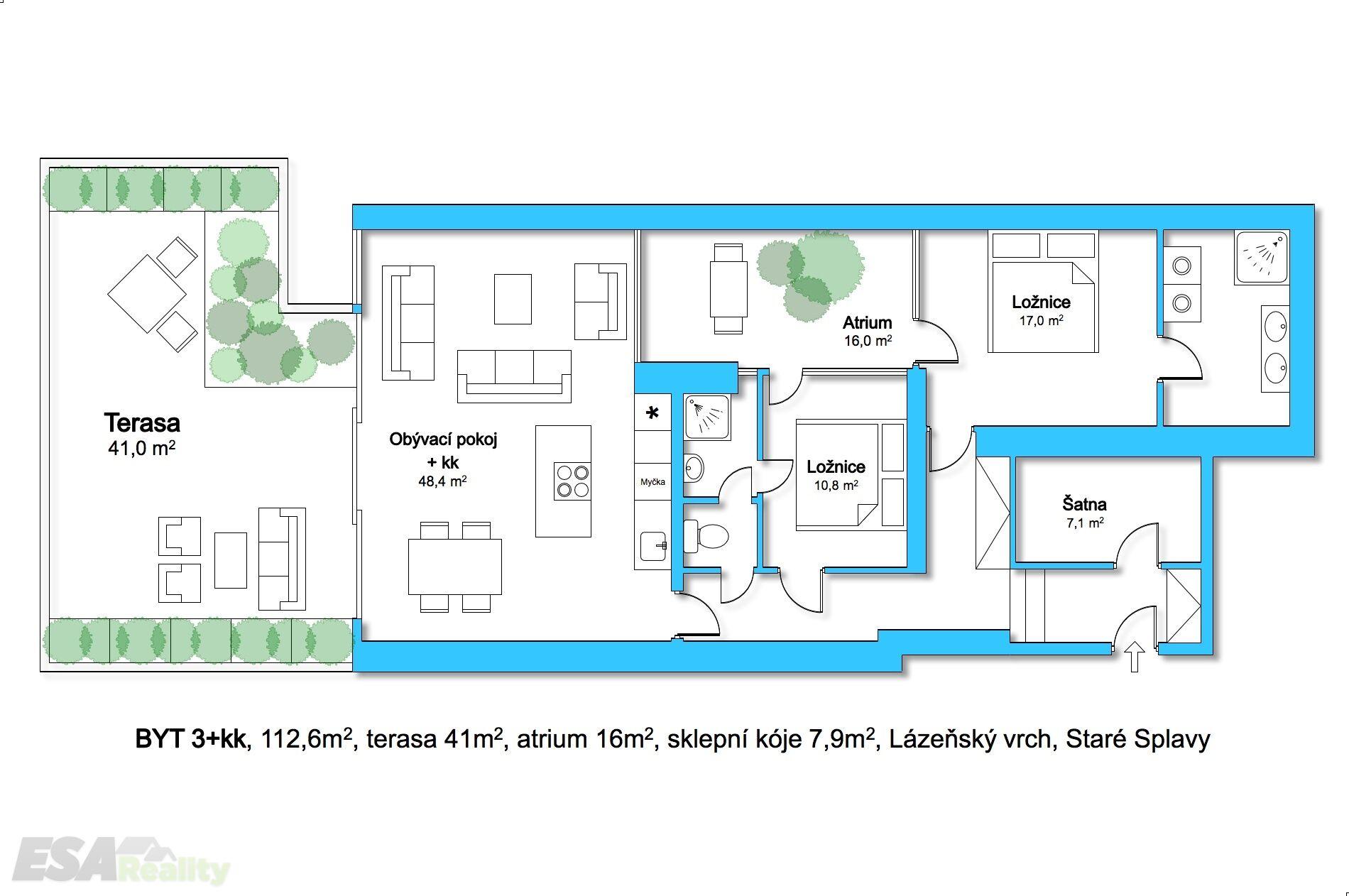
Prodej bytu 3+kk, 112,6m2, terasa 41m2, atrium 16m2, sklepní kóje 7,9m2, Lázeňský vrch, Staré Splavy
Rezidence Terasy Mládí v ulici Lázeňský vrch ve Starých Splavech se nachází na vyvýšeném místě v první linii u jezera s přímým přístupem k jezeru, v lázeňské lokalitě exkluzivních vil.
Původní vila Annahof, postavená ve 20. letech minulého století v romantickém stylu Art Deco, byla rozšířena o moderní minimalistickou přístavbu s rozsáhlými prosklenými plochami, které dodávají celému objektu jedinečný charakter.
Všechny vnitřní konstrukce jsou zcela nové, stejně jako moderní přístavba orientovaná k jezeru, která se vyznačuje čistým architektonickým stylem. Dům je vybaven výtahem, saunou a odpočinkovou zónou.
Standard bytu: velkoformátová hliníková posuvná okna Reynaers, podlahové vytápění Rehau a radiátory, kondenzační kotel Viessmann, předokenní elektrické žaluzie, sluneční markýza na terase, zabezpečovací systém, bezpečnostní dveře Next.
Dispozice bytu nabízí velkorysý obývací pokoj s jídelním prostorem a kuchyní, dále dvě ložnice, dvě koupelny s toaletou, šatnu, prosklené atrium a terasu.
V okolí je k dispozici jachtklub, aquapark a další možnosti sportovního vyžití i relaxace.
Možnost financování hypotečním úvěrem.
| Cena: | 14 990 000 Kč |
| Poznámka: | Cena je včetně provize a veškerého právního servisu |
| Dispozice/podlahová plocha: | 3+kk/177 m² |
| Číslo zakázky: | REALITYMIX-N00075 |
Podrobné informace
- Dispozice bytu: 3+kk
- Číslo podlaží v domě: 2
- Počet podlaží objektu: 5
- Užitná plocha: 112 m²
- Celková podlahová plocha: 177 m²
- Druh objektu: cihlová
- Stav objektu: velmi dobrý
- Vlastnictví: osobní
- Sklep: 7 m²
- Terasa: 41 m²
- Doprava: vlak, silnice, autobus
- Topení: Ústřední - plynové
- Energetická náročnost budovy: B - Velmi úsporná
- Energetický ukazatel podle vyhlášky: č. 78/2013 Sb.
Právní rádce
-
Detail
V tomto článku shrneme nejdůležitější věci, které byste si měli promyslet, pokud se chystáte prodat svou nemovitost a chcete, abyste s kupujícím nemusel následně řešit vzniklé problémy.
Jako prodávající nesete rizika spojená nejen se samotným obchodem, ale i se stavem nemovitosti v době prodeje a pro minimalizaci rizik, je dobré se zamyslet nad uvedenými oblastmi.
-
Detail
Realitní makléř má své nezastupitelné místo v realitním obchodu. Realitním makléřem nemyslím nevzdělané jelito, které absolvovalo dvoudenní školení a ví, jak se nahraje inzerát na inzertní portál.
Realitním makléřem, který se Vám skutečně vyplatí, je zkušený profesionál, který je schopen Vám dobře poradit jak prodat za co nejvíc a s nejmenším rizikem a hlavně je Vás schopen obratně provést celým realitním obchodem.