Prodej - dům/vila, 98 m²
Hradecká, Dačice IV, Jindřichův Hradec
2 495 000 KčProdej - dům/vila, 98 m²
Hradecká, Dačice IV, Jindřichův Hradec
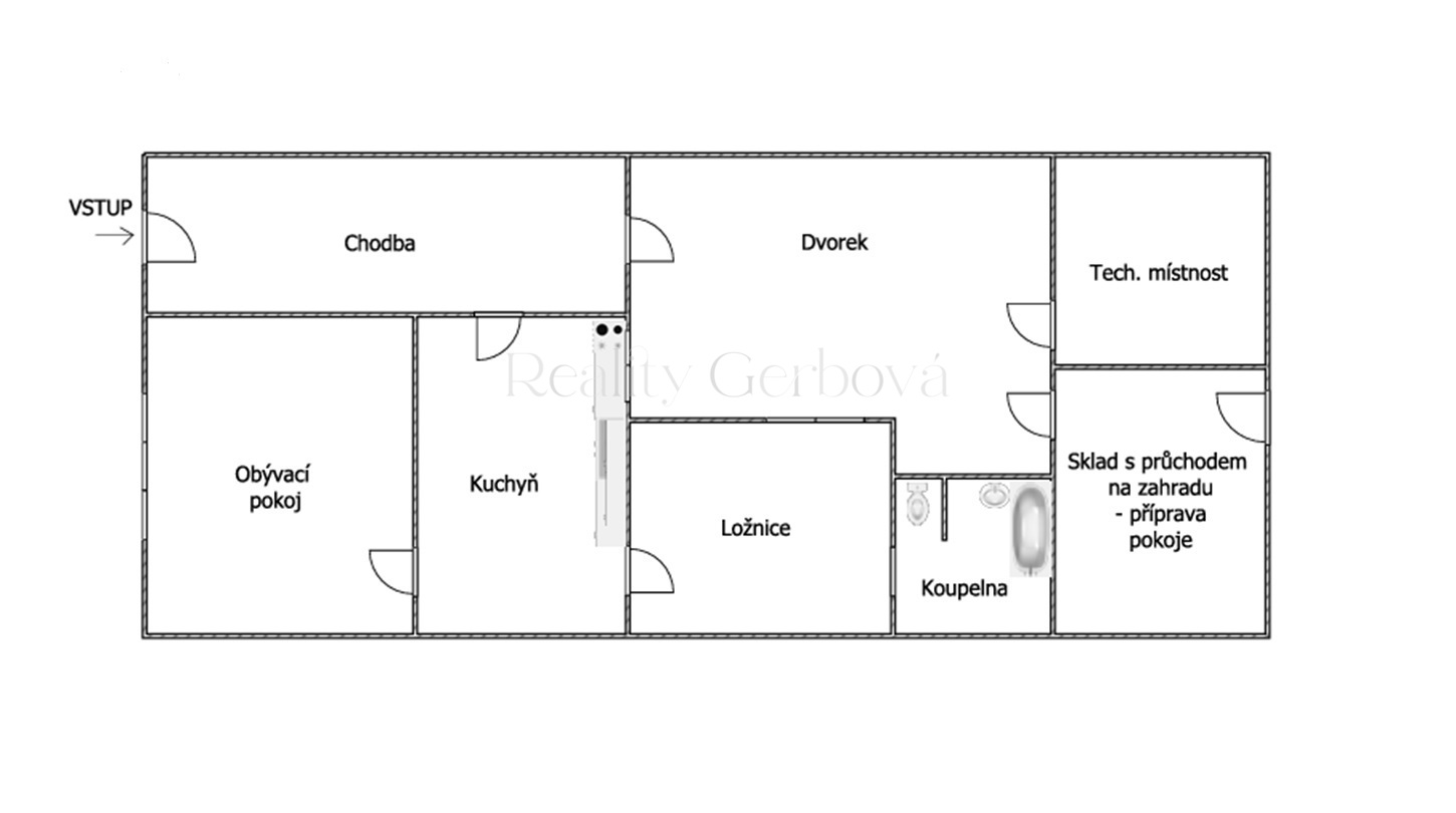
Rodinný dům 2+1 se zahradou a dvorem v centru Dačic
V samotném srdci Dačic nabízím řadový rodinný dům o dispozici 2+1 s možností rozšíření o další místnosti – jedna z nich už je dokonce částečně připravena.
Užitná plocha domu je 98 m², celková výměra pozemku činí 349 m².
Nemovitost je napojená na obecní vodovod i kanalizaci. Vytápění zajišťují nové úsporné plynové karmy. Dům prošel částečnou rekonstrukcí a je ihned obyvatelný, ale zároveň nabízí prostor pro úpravy podle vašich představ.
Součástí nabídky je i vizualizace interiéru, která vám pomůže lépe si představit budoucí podobu jednotlivých místností a celkový potenciál domu.
Za zmínku stojí uzavřený dvůr, který poskytuje klid a soukromí. Navazuje na něj zahrada – ideální pro relax, děti, domácí mazlíčky nebo menší zahrádku.
Dům se nachází v samotném centru Dačic, odkud máte všechno důležité v docházkové vzdálenosti:
- škola a školka
- obchody, kavárny, restaurace
- lékárna a pošta
- autobusové nádraží
- městský úřad
- zdravotní středisko
- kulturní dům a zámek Dačice
- městský park a sportoviště
Město nabízí vše, co potřebujete pro pohodlný každodenní život i volný čas.
S financováním vám ráda pomohu – spolupracuji s ověřeným hypotečním specialistou, který vám zdarma spočítá možnosti a pomůže vybrat nejvýhodnější variantu.
Nezáleží, jestli už hypotéku řešíte, nebo teprve zvažujete, co si můžete dovolit – začít se dá vždy bezpečně a s přehledem.
Pro koho je nemovitost ideální?
- mladý pár, který hledá vlastní bydlení
- seniory, kteří ocení centrum města a klidný dvorek
- investiční příležitost k pronájmu
Máte zájem nebo jen otázku?
Neváhejte mě kontaktovat – klidně i o víkendu.
Ráda si najdu čas a vše vám vysvětlím osobně.
| Cena: | 2 495 000 Kč |
| Poznámka: | včetně provize RK |
| Číslo zakázky: | REALITYMIX-2513 |
Podrobné informace
- Poloha objektu: řadový
- Druh objektu: smíšená
- Stav objektu: velmi dobrý
- Počet podlaží objektu: 1
- Typ domu: přízemní
- Zastavěná plocha: 98 m²
- Plocha parcely: 349 m²
- Zahrada: 349 m²
- Užitná plocha: 98 m²
- Umístění objektu: centrum obce
- Komunikace: asfaltová
- Elektřina: Elektro - 120 V, Elektro - 230 V, Elektro - 400 V
- Voda: Voda - dálkový vodovod
- Plyn: Plynovod
- Topení: Ústřední - plynové
- Odpad: Kanalizace
- Energetická náročnost budovy: G - Mimořádně nehospodárná
- Energetický ukazatel podle vyhlášky: č. 264/2020 Sb.
Právní rádce
-
Detail
V tomto článku shrneme nejdůležitější věci, které byste si měli promyslet, pokud se chystáte prodat svou nemovitost a chcete, abyste s kupujícím nemusel následně řešit vzniklé problémy.
Jako prodávající nesete rizika spojená nejen se samotným obchodem, ale i se stavem nemovitosti v době prodeje a pro minimalizaci rizik, je dobré se zamyslet nad uvedenými oblastmi.
-
Detail
Realitní makléř má své nezastupitelné místo v realitním obchodu. Realitním makléřem nemyslím nevzdělané jelito, které absolvovalo dvoudenní školení a ví, jak se nahraje inzerát na inzertní portál.
Realitním makléřem, který se Vám skutečně vyplatí, je zkušený profesionál, který je schopen Vám dobře poradit jak prodat za co nejvíc a s nejmenším rizikem a hlavně je Vás schopen obratně provést celým realitním obchodem.