Prodej - dům/vila, 283 m²
Čím, Příbram
5 400 000 KčProdej - dům/vila, 283 m²
Čím, Příbram
Prodej domu s projektem na přestavbu na 3 byty v Čími, okes Příbram
Nabízíme exkluzivně k prodeji Společnost s ručením omezeným, v jejímž výlučném vlastnictví je dům s pozemke, na katastru vedený jako občanská vybavenost. Tento projekt je součástí prodeje. Prodávají předloží účetnictví a zajistí audit.
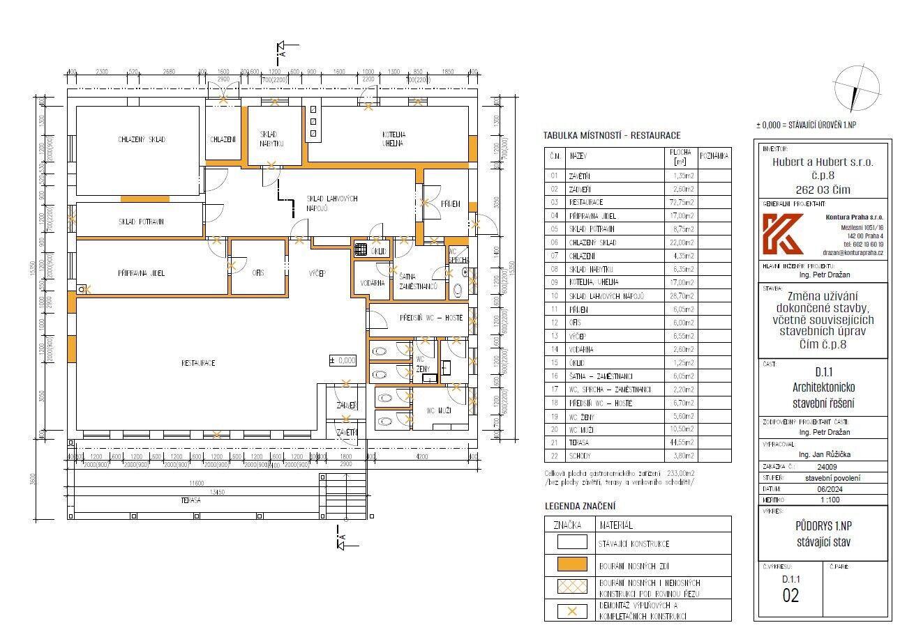
Doposud byl objekt využíván jako restaurace. K domu patří terasa. Vlastní studna + kanalizace. Elektřina 230/400 W. Jistič 32 A.
Topení - elektrokotel a kotel na tuhá paliva s podavačem. Bojler.
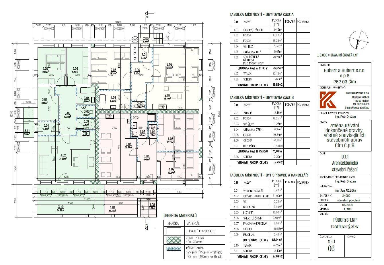
Projekt na přestavbu na 3 bytové jednotky je v ceně.
Byty: A) 75,65 m2 + terasa 15,12 m2 + schody 3,69 m2
B) 73,40 m2 + schody 3,3 m2
C) byt správce 83,94 m2 + terasa 24,9 m2 + schody 2,4 m2
Pozemek celkem 718 m2.
Kompletní dokumentaci na přestavbu zašleme na vyžádání.
| Cena: | 5 400 000 Kč |
| Číslo zakázky: | REALITYMIX-N00138 |
Podrobné informace
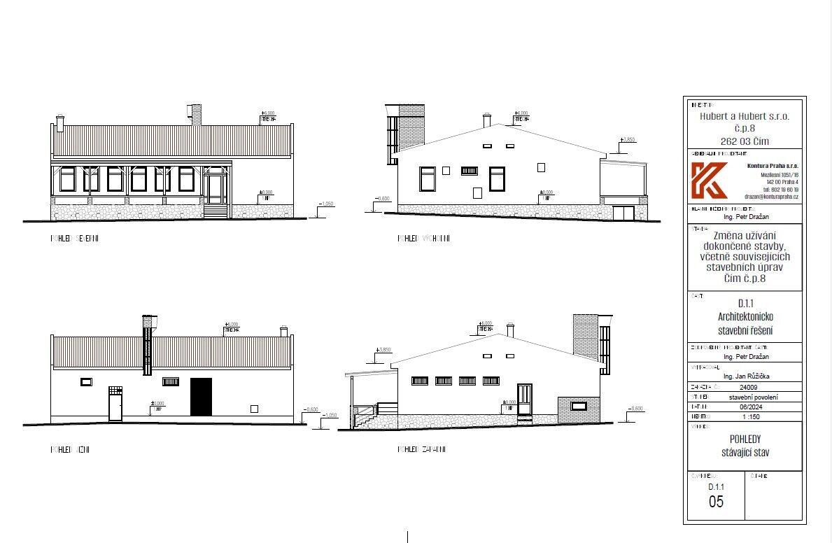
- Poloha objektu: samostatný
- Druh objektu: cihlová
- Stav objektu: dobrý
- Počet podlaží objektu: 1
- Typ domu: přízemní
- Zastavěná plocha: 542 m²
- Plocha parcely: 718 m²
- Užitná plocha: 283 m²
- Umístění objektu: klidná část obce
Právní rádce
-
Detail
V tomto článku shrneme nejdůležitější věci, které byste si měli promyslet, pokud se chystáte prodat svou nemovitost a chcete, abyste s kupujícím nemusel následně řešit vzniklé problémy.
Jako prodávající nesete rizika spojená nejen se samotným obchodem, ale i se stavem nemovitosti v době prodeje a pro minimalizaci rizik, je dobré se zamyslet nad uvedenými oblastmi.
-
Detail
Realitní makléř má své nezastupitelné místo v realitním obchodu. Realitním makléřem nemyslím nevzdělané jelito, které absolvovalo dvoudenní školení a ví, jak se nahraje inzerát na inzertní portál.
Realitním makléřem, který se Vám skutečně vyplatí, je zkušený profesionál, který je schopen Vám dobře poradit jak prodat za co nejvíc a s nejmenším rizikem a hlavně je Vás schopen obratně provést celým realitním obchodem.