Prodej - dům/vila, 196 m²
Mariánské náměstí, Černovice, Pelhřimov
4 200 000 KčProdej - dům/vila, 196 m²
Mariánské náměstí, Černovice, Pelhřimov
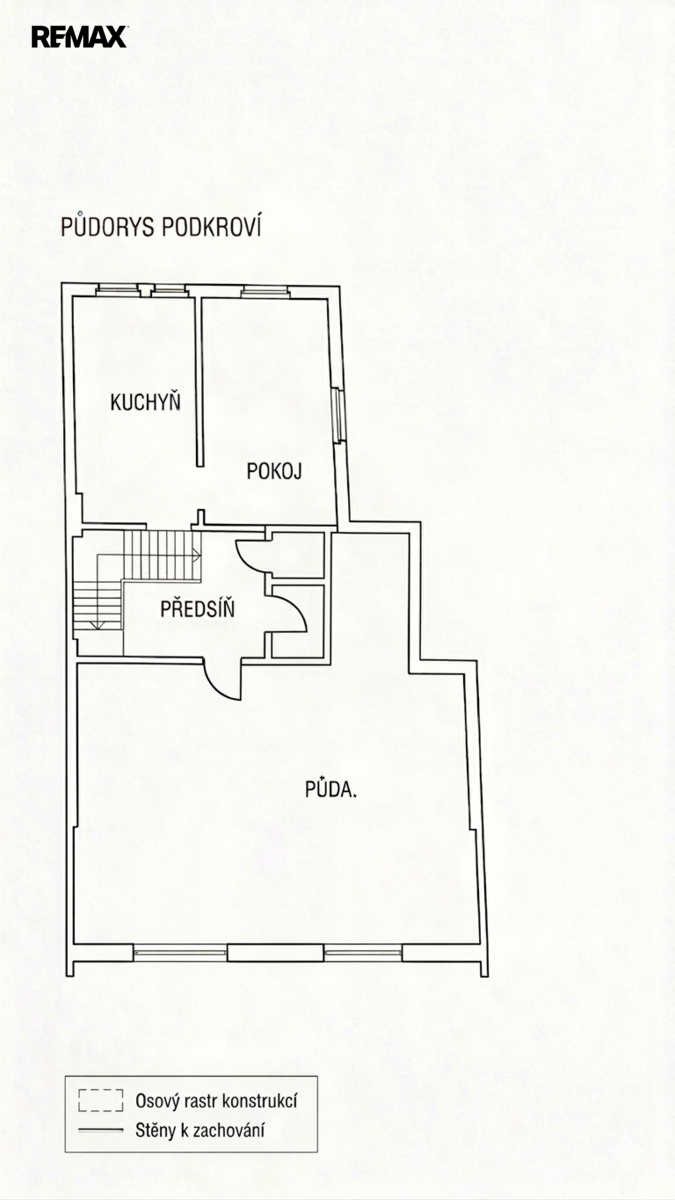
Prodej rodinného domu 196 m2, pozemek 828 m2
Dům prošel částečnou rekonstrukcí a je v dobrém technickém stavu. Je napojen na obecní vodovod a kanalizaci. Plynová přípojka se nachází přímo před domem.
Dispozice domu umožňuje vícegenerační využití, případně oddělení obytné a podnikatelské části. Výhodou je také možnost parkování až dvou automobilů v průjezdu.
Součástí pozemku je hospodářská budova o výměře 96 m², která nabízí široké možnosti využití – například jako dílna, sklad, garáž, zázemí pro podnikání nebo chov zvířat.
Na pozemku se nacházejí dvě zahrady, které lze využít k odpočinku, pěstování ovoce a zeleniny, posezení s rodinou nebo například jako výběh pro drobná domácí zvířata.
Na dosah je občanská vybavenost - školka, škola, autobusová zastávka, městský úřad, pošta, bankomat, prodejny potravin, řeznictví, železářství, benzínová stanice, prodejna stavebnin, železniční zastávka úzkokolejky, autoservis a další.
Další velkou výhodou nemovitosti je územní plán, ve kterém je nemovitost vedena jako plochy smíšené obytné městské (SM). Toto využití umožňuje kombinaci bydlení a obslužných funkcí, jako jsou obchod, služby, administrativa nebo kanceláře.
Hlavní výhody:
centrum města – přímo na náměstí
částečná rekonstrukce
obecní vodovod a kanalizace
plynová přípojka před domem
pevný internet
možnost parkování 2 aut v průjezdu
hospodářská budova 96 m²
dvě zahrady
vhodné pro vícegenerační bydlení
možnost spojení bydlení a podnikání
8 obytných místností
2x samostatné wc
2x samostatná koupelna
2x koupelna s wc
V případě zájmu o více fotografií, informací nebo prohlídku neváhejte kontaktovat makléře nabídky. Prodávající si vyhrazuje právo vybrat kupujícího na základě jím zvolených kritérií.
| Cena: | 4 200 000 Kč |
| Číslo zakázky: | REALITYMIX-436554 |
Podrobné informace
- Poloha objektu: řadový
- Druh objektu: cihlová
- Stav objektu: dobrý
- Počet podlaží objektu: 2
- Typ domu: patrový
- Zastavěná plocha: 258 m²
- Plocha parcely: 828 m²
- Zahrada: 570 m²
- Užitná plocha: 196 m²
- Sklep: 8 m²
- Umístění objektu: centrum obce
- Doprava: vlak, silnice, autobus
- Komunikace: asfaltová
- Elektřina: Elektro - 230 V, Elektro - 400 V
- Voda: Voda - dálkový vodovod
- Telekomunikace: Internet
- Plyn: Plynovod
- Odpad: Kanalizace
- Energetická náročnost budovy: G - Mimořádně nehospodárná
- Energetický ukazatel podle vyhlášky: č. 264/2020 Sb.
Právní rádce
-
Detail
V tomto článku shrneme nejdůležitější věci, které byste si měli promyslet, pokud se chystáte prodat svou nemovitost a chcete, abyste s kupujícím nemusel následně řešit vzniklé problémy.
Jako prodávající nesete rizika spojená nejen se samotným obchodem, ale i se stavem nemovitosti v době prodeje a pro minimalizaci rizik, je dobré se zamyslet nad uvedenými oblastmi.
-
Detail
Realitní makléř má své nezastupitelné místo v realitním obchodu. Realitním makléřem nemyslím nevzdělané jelito, které absolvovalo dvoudenní školení a ví, jak se nahraje inzerát na inzertní portál.
Realitním makléřem, který se Vám skutečně vyplatí, je zkušený profesionál, který je schopen Vám dobře poradit jak prodat za co nejvíc a s nejmenším rizikem a hlavně je Vás schopen obratně provést celým realitním obchodem.