Prodej - dům/vila, 200 m²
Černokostelecká, Černé Voděrady, Praha-východ
4 550 000 KčProdej - dům/vila, 200 m²
Černokostelecká, Černé Voděrady, Praha-východ
Prodej rodinného domu 5+kk s menší zahrádkou v obci Černé Voděrady
Dům splňuje podmínky pro čerpání státní dotace ,,Oprav dům po babičce" v hodnotě cca 600 tis. Kč.
Zprostředkuji prodej dvoupodlažního rodinného domu s kompletním stavebním povolením pro jeho dokončení dle projektové dokumentace, která je součástí prodeje zdarma. Je vydáno stavební povolení.
Vnitřní prostory jsou již vybourány na obvodové zdi, vše je připraveno k dokončení příček mezi místnostmi.
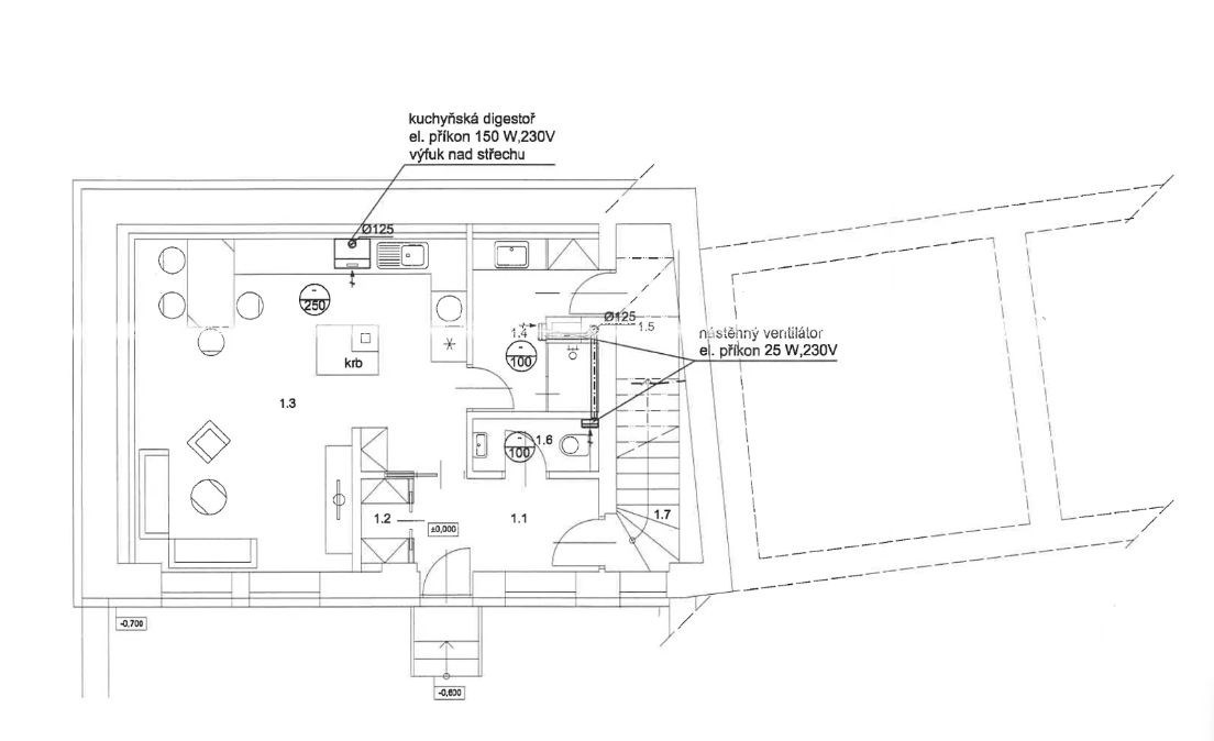
Dispozice domu:
5+kk, dvě koupelny, dvě toalety, technická místnost, samostatná garáž.
Dům již nyní disponuje novou plechovou střechou včetně nového laťování a částečně nového krovu, jsou osazena nová plastová okna i světlík na půdě.
Půdní prostory mají připravené nové podlahy z OSB desek a izolaci z minerální vaty.
Dům má již nově instalovanou vjezdovou bránu i branku.
Dokončení celkové rekonstrukce je odhadováno na cca 1,5 milionu Kč s využitím dotace cca 600 tis. Kč.
Za tuto investici můžete získat plnohodnotné rodinné bydlení za cenu menšího bytu v Praze.
Jedná se o ideální příležitost pro ty, kdo hledají možnost vytvořit si vlastní domov v rodinném domě.
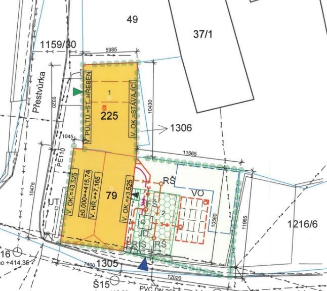
Zastavěná plocha domu je 130 m2, užitná plocha přibližně 200 m2 a k tomu náleží malá pozemek o velikosti 120 m2.
Stavba je cihlová, je napojená na vodovod, kanalizaci a elektřinu. Všechny přípojky jsou již zhotovené.
Vytápění je navrženo kotlem na pelety a elektrickým kotlem, což zajišťuje energeticky úsporný provoz.
K dispozici je kompletní projektová dokumentace včetně vyjádření dotčených úřadů a PENB úsporné třídy A.
V rámci prodeje domu je dle dohody možné i výhodně zakoupit stavební materiál (sádrokartony, izolační vata, plechy pro střechu na garáži, plastová okna, terasové dveře, vstupní bezpečnostní dveře, interiérové dveře, topná tělesa, kotel na pelety atd.).
Nemovitost se nachází v obci Černé Voděrady v okrese Prahavýchod. Tato lokalita nabízí klidné bydlení s výbornou dostupností do Prahy _ přibližně 35 minut jízdy _ a rychlé spojení do okolních měst, jako jsou Říčany, Mnichovice nebo Kostelec nad Černými Lesy.
Černé Voděrady leží v malebné krajině přibližně 34 km jihovýchodně od centra Prahy a jsou známé chráněnou krajinnou oblastí Voděradské bučiny, která je ideální pro cyklistiku i pěší výlety. Nedaleko je vstup do lesa a krásný rybník.
V obci se nachází obecní úřad, restaurace, koupaliště a sportovní hřiště.
Nejbližším městem s rozšířenou občanskou vybaveností jsou Mnichovice, vzdálené přibližně 8 km, kde jsou mateřské i základní školy.
Pro více informací mne kontaktujte, ráda pomůžu s vyřízením hypotéky i s možností vyřízení státní dotace na dokončení rekonstrukce.
| Cena: | 4 550 000 Kč |
| Poznámka: | Po dohodě je možné výhodně dokoupit stavební materiál pro dodělání plánované rekontrukce |
| Datum k nastěhování: | 30.12.2025 |
| Číslo zakázky: | REALITYMIX-972472 |
Podrobné informace
- Poloha objektu: samostatný
- Druh objektu: cihlová
- Stav objektu: před rekonstrukcí
- Počet podlaží objektu: 1
- Typ domu: přízemní
- Zastavěná plocha: 130 m²
- Plocha parcely: 244 m²
- Zahrada: 120 m²
- Užitná plocha: 200 m²
- Ostatní: Garáž
- Elektřina: Elektro - 230 V
- Voda: Zdroj pro celý objekt, Voda - dálkový vodovod
- Odpad: Kanalizace
- Energetická náročnost budovy: G - Mimořádně nehospodárná
Právní rádce
-
Detail
V tomto článku shrneme nejdůležitější věci, které byste si měli promyslet, pokud se chystáte prodat svou nemovitost a chcete, abyste s kupujícím nemusel následně řešit vzniklé problémy.
Jako prodávající nesete rizika spojená nejen se samotným obchodem, ale i se stavem nemovitosti v době prodeje a pro minimalizaci rizik, je dobré se zamyslet nad uvedenými oblastmi.
-
Detail
Realitní makléř má své nezastupitelné místo v realitním obchodu. Realitním makléřem nemyslím nevzdělané jelito, které absolvovalo dvoudenní školení a ví, jak se nahraje inzerát na inzertní portál.
Realitním makléřem, který se Vám skutečně vyplatí, je zkušený profesionál, který je schopen Vám dobře poradit jak prodat za co nejvíc a s nejmenším rizikem a hlavně je Vás schopen obratně provést celým realitním obchodem.