Prodej - dům/vila, 139 m²
Břízová, Buštěhrad, Kladno
15 790 000 KčProdej - dům/vila, 139 m²
Břízová, Buštěhrad, Kladno
Prodej rodinného domu 4+kk s garáží a zahradou, Buštěhrad
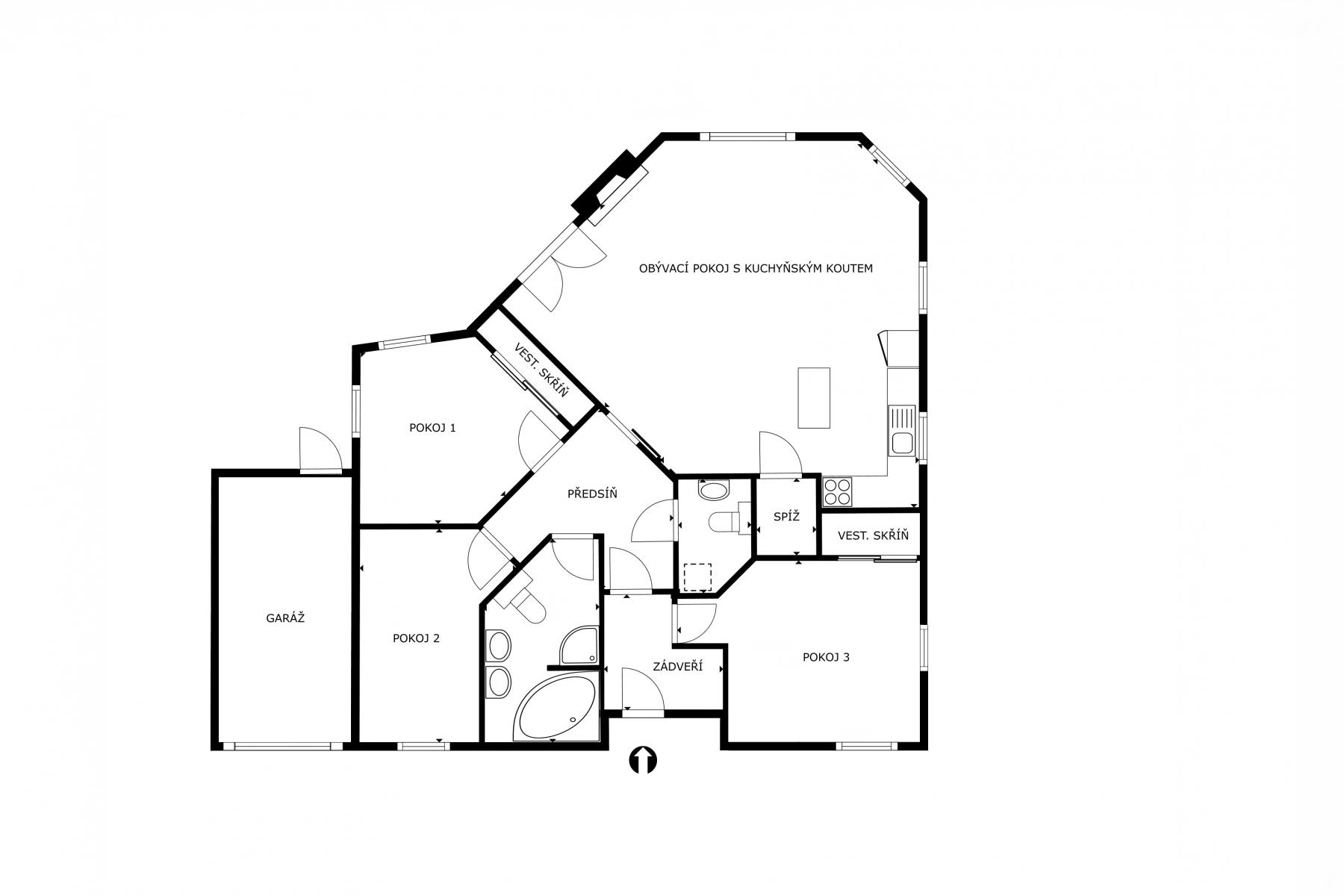
Dům o dispozici 4+kk s garáží, parkovacím stáním a zahradou nabízí současnou užitnou plochu 139 m2 a zároveň zajímavý potenciál budoucího rozšíření až na přibližně 210 - 230 m2 díky připravenému půdnímu prostoru. Bydlení je nyní řešeno jako bezbariérové, celé v jedné úrovni.
Základní parametry domu:
- užitná plocha domu: 139 m2
- půdní prostor připravený pro vestavbu: cca 100 m2
- potenciální užitná plocha po dokončení: až cca 210 - 230 m2
Dominantou domu je obývací pokoj s kuchyňským koutem a krbem. Z obývací části je přímý vstup na terasu a do zahrady. Dispozice zahrnuje tři samostatné ložnice, koupelnu s rohovou vanou, sprchovým koutem, dvěma umyvadly a WC, dále samostatné WC. Zahrada poskytuje dostatek soukromí pro relaxaci i rodinné posezení.
Velkou výhodou domu je půdní prostor nad celou plochou domu, který je již od výstavby připraven pro případnou obytnou vestavbu. Budoucí úpravou lze obytnou plochu domu rozšířit přibližně o 60 - 80 % oproti současné podlahové ploše. Půda má střešní okna, pochozí podlahu. V současnosti slouží jako světlý a praktický úložný prostor.
Parkování je zajištěno v garáži, další parkovací místo je k dispozici na vlastním pozemku a parkovat lze také před domem.
Hlavní přednosti nemovitosti:
- přízemní rodinný dům 4+kk bez schodů (bezbariérové řešení)
- půda s potenciálem dalšího využití
- podlahové vytápění a krb v obývacím pokoji
- garáž + další parkovací místo na pozemku
- zahrada s terasou
- nízká energetická náročnost (PENB C)
- klidná lokalita
- skvělá dopravní dostupnost do Prahy
Město Buštěhrad nabízí příjemné bydlení v blízkosti přírody a zároveň rychlou dostupnost do Prahy.
Pokud hledáte dům s příjemnou atmosférou a potenciálem dalšího rozšíření, rádi vás přivítáme na osobní prohlídce.
| Cena: | 15 790 000 Kč |
| Číslo zakázky: | REALITYMIX-0126P |
Podrobné informace
- Poloha objektu: samostatný
- Druh objektu: dřevěná
- Stav objektu: velmi dobrý
- Počet podlaží objektu: 1
- Typ domu: přízemní
- Zastavěná plocha: 133 m²
- Plocha parcely: 811 m²
- Užitná plocha: 139 m²
- Terasa: 27 m²
- Umístění objektu: klidná část obce
- Doprava: silnice, autobus
- Topení: Lokální - plynové
- Odpad: Kanalizace
- Energetická náročnost budovy: C - Vyhovující
Právní rádce
-
Detail
V tomto článku shrneme nejdůležitější věci, které byste si měli promyslet, pokud se chystáte prodat svou nemovitost a chcete, abyste s kupujícím nemusel následně řešit vzniklé problémy.
Jako prodávající nesete rizika spojená nejen se samotným obchodem, ale i se stavem nemovitosti v době prodeje a pro minimalizaci rizik, je dobré se zamyslet nad uvedenými oblastmi.
-
Detail
Realitní makléř má své nezastupitelné místo v realitním obchodu. Realitním makléřem nemyslím nevzdělané jelito, které absolvovalo dvoudenní školení a ví, jak se nahraje inzerát na inzertní portál.
Realitním makléřem, který se Vám skutečně vyplatí, je zkušený profesionál, který je schopen Vám dobře poradit jak prodat za co nejvíc a s nejmenším rizikem a hlavně je Vás schopen obratně provést celým realitním obchodem.