Pronájem - výrobní prostor, 1 067 m²
Zaoralova, Brno-Líšeň, Brno, Brno-město
Cena na vyžádáníPronájem - výrobní prostor, 1 067 m²
Zaoralova, Brno-Líšeň, Brno, Brno-město
Cena na vyžádání
C
Vyhovující
Pronájem výrobních prostor 1 067 m², Brno
Pronájem výrobních prostor se zázemím v Brně Líšni.
V zastoupení majitele a bez provize nabízíme výrobní prostory umístěně v nově vznikajícím výrobně - logistickém parku v Brně.
- k nastěhování Q4/2026
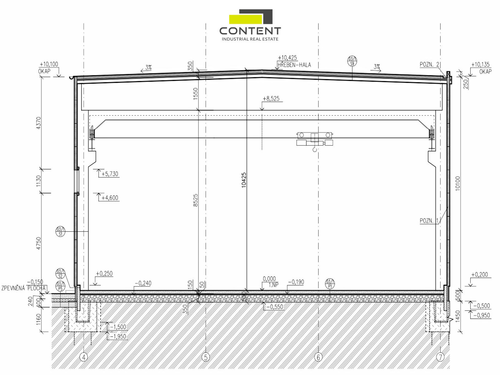
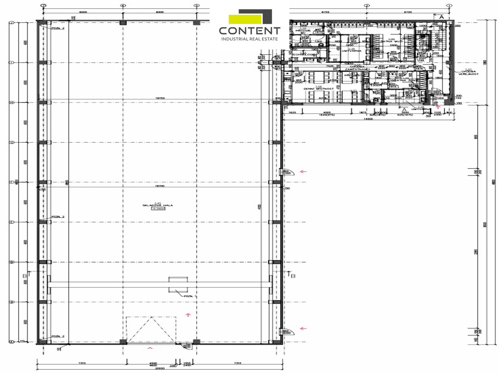
- výrobní hala o půdorysné ploše 1067 m²
- instalované patky na mostový jeřáb o nosnosti 5 tun
- světlá výška 10 m, pojezdová dráha je ve výšce 8 metrů
- bezprašné podlahy s nosností 5t/m²
- 1x Drive IN pro možnost vjezdu nákladních aut do haly
- všechny IS k dispozici
- Dostatečný příkon elektřiny
- kanceláře, showroom a sociální zázemí o celkové velikosti až 480 m²
- vhodné jako sídlo společnosti
- 20 parkovacích míst před halou
- výborná dostupnost pro osobní i nákladní dopravu
- dálnice D1 cca 3km
- MHD a občanská vybavenost je v docházkové vzdálenosti cca. 360 m
Cena je individuální dle konkrétních podmínek smlouvy.
Pro více informací nás kontaktujte.
V zastoupení majitele a bez provize nabízíme výrobní prostory umístěně v nově vznikajícím výrobně - logistickém parku v Brně.
- k nastěhování Q4/2026
- výrobní hala o půdorysné ploše 1067 m²
- instalované patky na mostový jeřáb o nosnosti 5 tun
- světlá výška 10 m, pojezdová dráha je ve výšce 8 metrů
- bezprašné podlahy s nosností 5t/m²
- 1x Drive IN pro možnost vjezdu nákladních aut do haly
- všechny IS k dispozici
- Dostatečný příkon elektřiny
- kanceláře, showroom a sociální zázemí o celkové velikosti až 480 m²
- vhodné jako sídlo společnosti
- 20 parkovacích míst před halou
- výborná dostupnost pro osobní i nákladní dopravu
- dálnice D1 cca 3km
- MHD a občanská vybavenost je v docházkové vzdálenosti cca. 360 m
Cena je individuální dle konkrétních podmínek smlouvy.
Pro více informací nás kontaktujte.
| Cena: | Cena na vyžádání |
| Poznámka: | Info o ceně v RK |
| Číslo zakázky: | REALITYMIX-7178 |
Podrobné informace
- Plocha kanceláří: 1067 m²
- Druh objektu: skeletová
- Stav objektu: novostavba
- Druh prostor: Výrobní
- Umístění objektu: rušná část obce
- Energetická náročnost budovy: C - Vyhovující
Mapa
* Umístění na mapě je na základě GPS informací dodaných realitní kanceláří.
* Pozice na mapě je pouze orientační.
Podobné nemovitosti
Pronájem - kanceláře, 370 m²
Purkyňova, Brno-Medlánky, Brno, Brno-město
280 Kč za m2/měsíc
Pronájem - kanceláře, 2 224 m²
Palachovo náměstí, Brno-Starý Lískovec, Brno, Brno-město
13,00 € za m2/měsíc
Pronájem - kanceláře, 887 m²
Palachovo náměstí, Brno-Starý Lískovec, Brno, Brno-město
13,00 € za m2/měsíc
Pronájem - kanceláře, 1 363 m²
Palachovo náměstí, Brno-Starý Lískovec, Brno, Brno-město
13,00 € za m2/měsíc