Pronájem bytu, 3+1, 62 m²
Dunajská, Brno-Starý Lískovec, Brno, Brno-město
22 000 Kč (za měsíc)Pronájem bytu, 3+1, 62 m²
Dunajská, Brno-Starý Lískovec, Brno, Brno-město
22 000 Kč
(za měsíc)
Pronájem bytu 3+1, Dunajská, Starý Lískovec, 22 000 Kč/měs, 62 m2
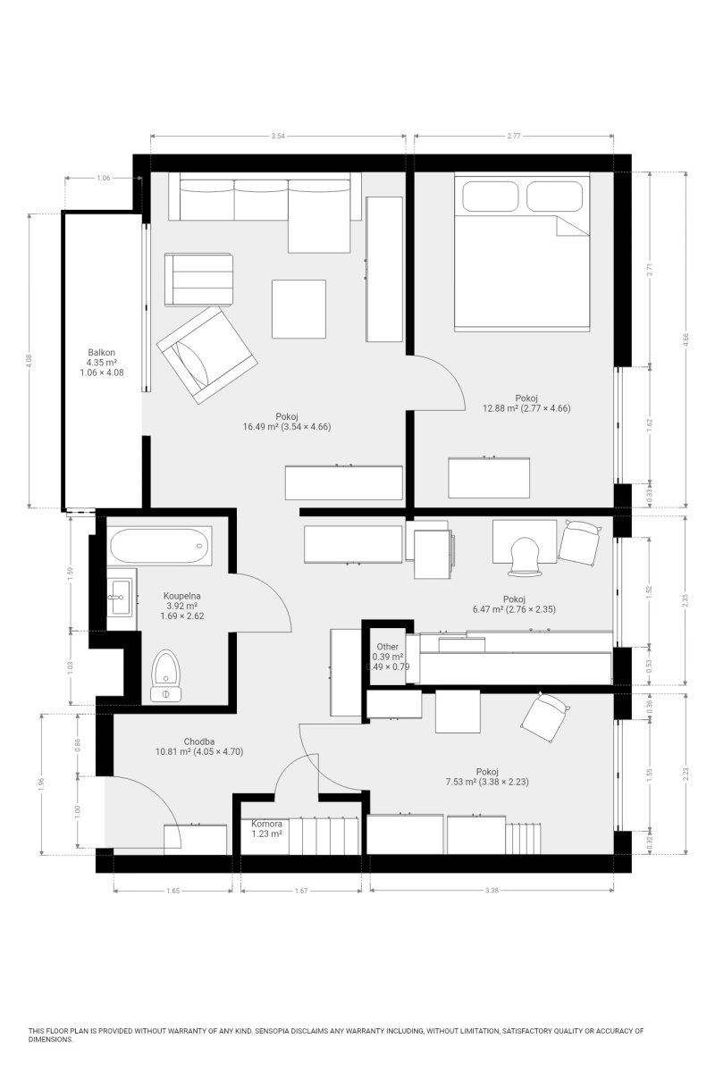
UPOZORNĚNÍ: Jeden pokoj je průchozí.
K dlouhodobému podnájmu nabízíme byt o dispozici 3+1 v oblíbené lokalitě Brno – Dunajská. Byt o celkové výměře 62 m² se nachází v 1. podlaží domu. K bytu náleží také lodžie.
Byt se nabízí plně vybavený dle fotografií. Kuchyně je vybavena lednicí, myčkou, elektrickou troubou, varnou deskou, mikrovlnnou troubou a digestoří. Obývací část disponuje sedačkou a konferenčním stolkem. Ložnice je zařízena postelí a skříní. V koupelně najdeme vanu, umyvadlo, pračku a toaletu.
Internet je v ceně.
V okolí domu se nachází veškerá občanská vybavenost – restaurace, supermarket, školy, lékárna. Zastávka MHD je vzdálená pár minut chůze.
Byt je volný k nastěhování od 1. 7. 2026
K dlouhodobému podnájmu nabízíme byt o dispozici 3+1 v oblíbené lokalitě Brno – Dunajská. Byt o celkové výměře 62 m² se nachází v 1. podlaží domu. K bytu náleží také lodžie.
Byt se nabízí plně vybavený dle fotografií. Kuchyně je vybavena lednicí, myčkou, elektrickou troubou, varnou deskou, mikrovlnnou troubou a digestoří. Obývací část disponuje sedačkou a konferenčním stolkem. Ložnice je zařízena postelí a skříní. V koupelně najdeme vanu, umyvadlo, pračku a toaletu.
Internet je v ceně.
V okolí domu se nachází veškerá občanská vybavenost – restaurace, supermarket, školy, lékárna. Zastávka MHD je vzdálená pár minut chůze.
Byt je volný k nastěhování od 1. 7. 2026
| Cena: | 22 000 Kč / (za měsíc) |
| Poznámka: | vratná jistota, náklady na bydlení 5 300 Kč, poplatek za podnájem |
| Dispozice/podlahová plocha: | 3+1/62 m² |
| Číslo zakázky: | REALITYMIX-6302 |
Podrobné informace
- Dispozice bytu: 3+1
- Číslo podlaží v domě: 1
- Počet podlaží objektu: 8
- Celková podlahová plocha: 62 m²
- Druh objektu: panelová
- Stav objektu: velmi dobrý
- Vlastnictví: družstevní
- Vybaveno: ano
- Umístění objektu: klidná část obce
- Elektřina: Elektro - 230 V
Mapa
* Umístění na mapě je na základě GPS informací dodaných realitní kanceláří.
* Pozice na mapě je pouze orientační.
Podobné nemovitosti
Pronájem bytu, 3+1, 70 m²
Jurkovičova, Brno-sever, Brno, Brno-město
23 000 Kč za měsíc
Pronájem bytu, 3+1, 68 m²
Bieblova, Brno-sever, Brno, Brno-město
23 900 Kč za měsíc
Pronájem bytu, 3+1, 74 m²
Arbesova, Brno-sever, Brno, Brno-město
23 000 Kč za měsíc
Pronájem bytu, 3+1, 65 m²
Čejkovická, Brno-Vinohrady, Brno, Brno-město
22 500 Kč za měsíc