Pronájem bytu, 2+kk, 35 m²
Jižní, Brno-jih, Brno, Brno-město
17 500 Kč (za měsíc)Pronájem bytu, 2+kk, 35 m²
Jižní, Brno-jih, Brno, Brno-město
17 500 Kč
(za měsíc)
C
Vyhovující
Pronájem bytu 2+kk, Jižní, Horní Heršpice, Kč/měs, 35 m2
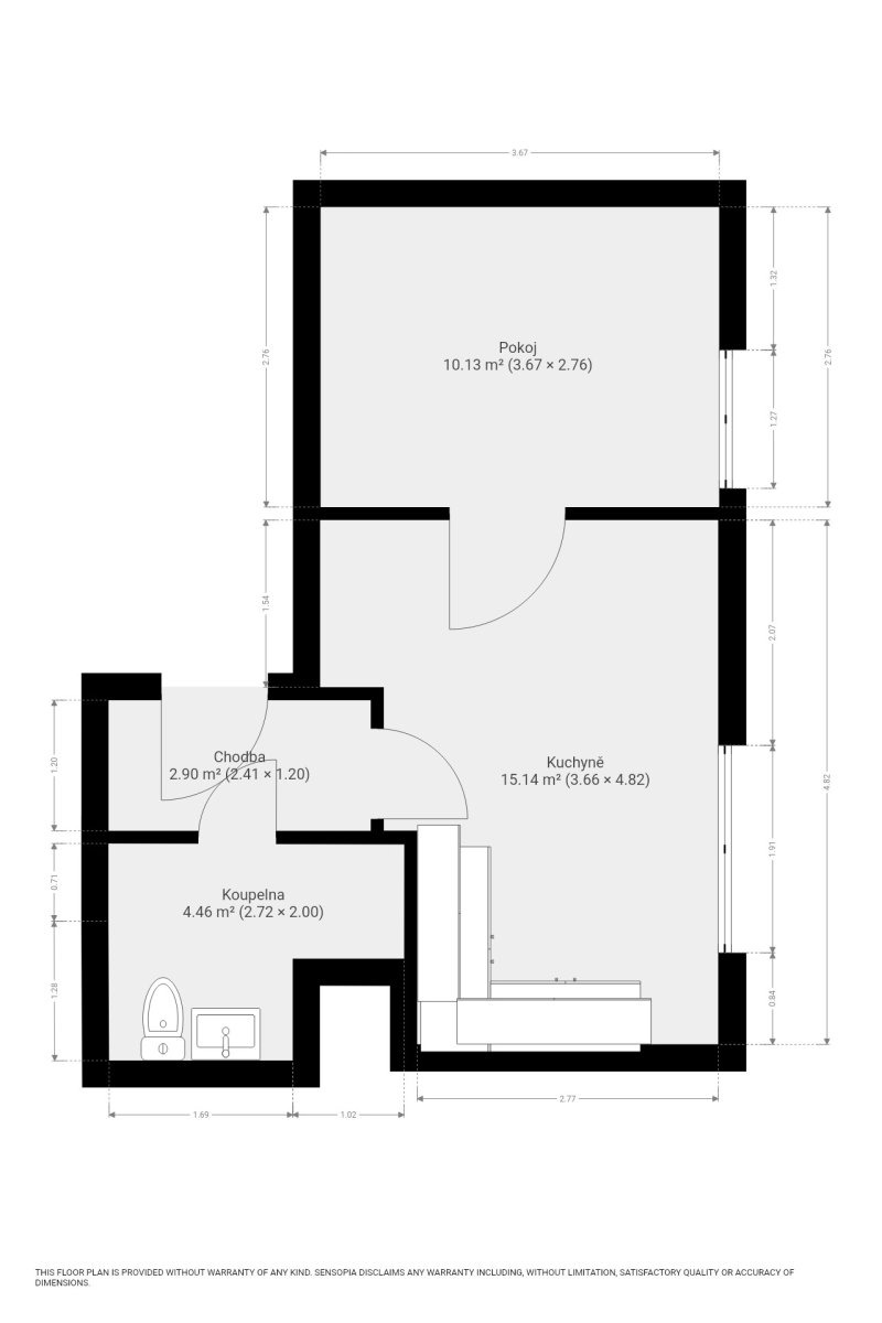
K dlouhodobému pronájmu nabízíme nový byt, který je aktuálně ve finální fázi úprav – právě se dokončuje příčka za nikou, díky které bude byt plnohodnotně řešen jako 2+kk. Byt se nachází v moderním rezidenčním domě na adrese Jižní 799/3 v Brně, v 5. patře domu s výtahem.
Celková plocha bytu činí 35 m² a dispozice nabídne samostatnou ložnici a obývací část s kuchyňským koutem. Byt se nabízí vybavený dle fotografií. Koupelna je moderně řešena se sprchovým koutem, toaletou a umyvadlem.
Benefitem bytu je výhled do zeleně směrem na řeku. Dům je součástí nové výstavby s kvalitní občanskou vybaveností v okolí a dobrou dostupností do centra města.
Byt je ihned k nastěhování.
Celková plocha bytu činí 35 m² a dispozice nabídne samostatnou ložnici a obývací část s kuchyňským koutem. Byt se nabízí vybavený dle fotografií. Koupelna je moderně řešena se sprchovým koutem, toaletou a umyvadlem.
Benefitem bytu je výhled do zeleně směrem na řeku. Dům je součástí nové výstavby s kvalitní občanskou vybaveností v okolí a dobrou dostupností do centra města.
Byt je ihned k nastěhování.
| Cena: | 17 500 Kč / (za měsíc) |
| Poznámka: | vratná jistota, náklady na bydlení 3580 Kč, poplatek za podnájem |
| Dispozice/podlahová plocha: | 2+kk/35 m² |
| Číslo zakázky: | REALITYMIX-7446 |
Podrobné informace
- Dispozice bytu: 2+kk
- Číslo podlaží v domě: 4
- Počet podlaží objektu: 6
- Celková podlahová plocha: 35 m²
- Druh objektu: cihlová
- Stav objektu: novostavba
- Vlastnictví: osobní
- Umístění objektu: klidná část obce
- Elektřina: Elektro - 230 V
- Energetická náročnost budovy: C - Vyhovující
Mapa
* Umístění na mapě je na základě GPS informací dodaných realitní kanceláří.
* Pozice na mapě je pouze orientační.
Podobné nemovitosti
Pronájem bytu, 2+kk, 50 m²
Churého, Brno-Černovice, Brno, Brno-město
15 500 Kč za měsíc
Pronájem bytu, 2+kk, 49 m²
Hrázka, Brno-Medlánky, Brno, Brno-město
17 900 Kč za měsíc
Pronájem bytu, 2+kk, 39 m²
Renneská třída, Brno-střed, Brno, Brno-město
15 900 Kč za měsíc
Pronájem bytu, 2+kk, 50 m²
Merhautova, Brno-sever, Brno, Brno-město
18 000 Kč za měsíc