Pronájem bytu, 4+1, 82 m²
Vedlejší, Brno-Bohunice, Brno, Brno-město
24 000 Kč (za měsíc)Pronájem bytu, 4+1, 82 m²
Vedlejší, Brno-Bohunice, Brno, Brno-město
24 000 Kč
(za měsíc)
D
Méně úsporná
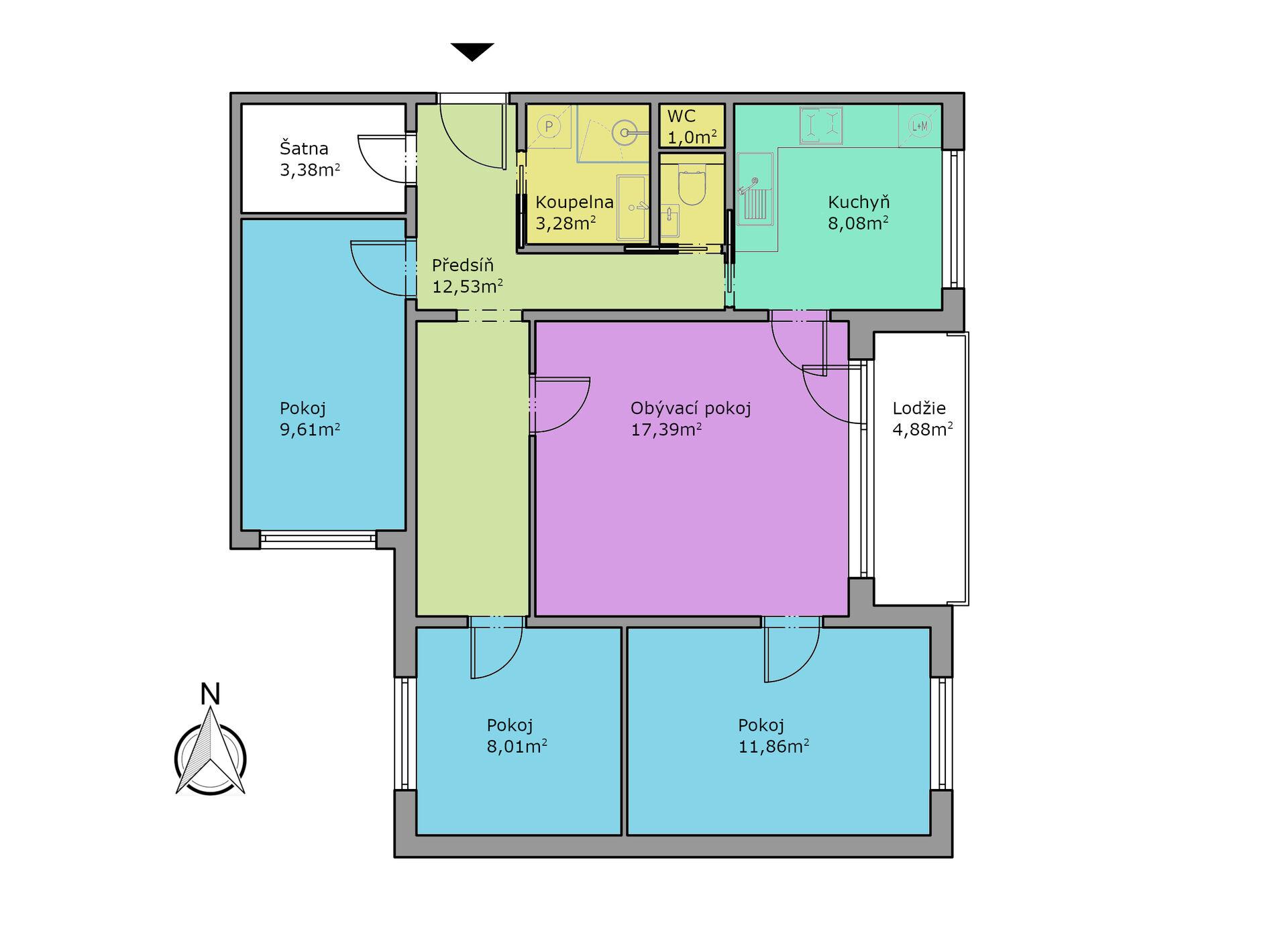
Byt 4+1 po GO, 82 m2, zasklená lodžie, sklep, ul. Vedlejší, Brno Bohunice
Nabízíme k pronájmu byt s dispozici 4+1 (neprůchozí pokoje), podlahovou plochou bytu 75m2 se zasklenou lodžií (5 m2) a sklepem (2 m2) vše o celkové výměře 82 m2. Jednotka se nachází v posledním patře 8-mi patrového panelového domu.
Bytová jednotka právě prošla generální rekonstrukcí, při níž byly vyměněny rozvody (elektro, voda, odpady) a položeny nové podlahy v celém bytě. Součástí rekonstrukce byla dále oprava bytového jádra a instalace nové kuchyňské linky na míru.
Byt se nabízí bez vybavení, jak patrno z fotografií. Kuchyňská linka disponuje myčkou na nádobí, troubou, indukční deskou a odsavačem par zaústěným do komínu. Teplo a ohřev teplé vody je realizováno pomocí dálkového rozvodu.
Byt je ihned k dispozici. Cena: 24.000 Kč/měsíc + inkaso 5.000 Kč/měsíc (1.700 Kč topení paušálně + 3.300 Kč za elektřinu, studenou i teplou vodu ve formě záloh, které se budou vyúčtovávat dle skutečné spotřeby), bez internetu. Vratná kauce 1 měsíční platba. Provize RK 1 měsíční platba.
Cena: 24.000 Kč + inkaso 5.000 Kč + internet
Bytová jednotka právě prošla generální rekonstrukcí, při níž byly vyměněny rozvody (elektro, voda, odpady) a položeny nové podlahy v celém bytě. Součástí rekonstrukce byla dále oprava bytového jádra a instalace nové kuchyňské linky na míru.
Byt se nabízí bez vybavení, jak patrno z fotografií. Kuchyňská linka disponuje myčkou na nádobí, troubou, indukční deskou a odsavačem par zaústěným do komínu. Teplo a ohřev teplé vody je realizováno pomocí dálkového rozvodu.
Byt je ihned k dispozici. Cena: 24.000 Kč/měsíc + inkaso 5.000 Kč/měsíc (1.700 Kč topení paušálně + 3.300 Kč za elektřinu, studenou i teplou vodu ve formě záloh, které se budou vyúčtovávat dle skutečné spotřeby), bez internetu. Vratná kauce 1 měsíční platba. Provize RK 1 měsíční platba.
Cena: 24.000 Kč + inkaso 5.000 Kč + internet
| Cena: | 24 000 Kč / (za měsíc) |
| Poznámka: | + 5.000 Kc inkaso |
| Datum k nastěhování: | 01.05.2026 |
| Dispozice/podlahová plocha: | 4+1/82 m² |
| Číslo zakázky: | REALITYMIX-N00157 |
Podrobné informace
- Dispozice bytu: 4+1
- Číslo podlaží v domě: 8
- Počet podlaží objektu: 8
- Užitná plocha: 82 m²
- Celková podlahová plocha: 82 m²
- Druh objektu: panelová
- Stav objektu: novostavba
- Vlastnictví: osobní
- Elektřina: Elektro - 230 V
- Telekomunikace: Internet
- Topení: Ústřední - dálkové
- Odpad: Kanalizace
- Ostatní rozvody: Kabelová televize
- Energetická náročnost budovy: D - Méně úsporná
- Energetický ukazatel podle vyhlášky: č. 264/2020 Sb.
Mapa
* Umístění na mapě je na základě GPS informací dodaných realitní kanceláří.
* Pozice na mapě je pouze orientační.
Podobné nemovitosti
Pronájem bytu, 4+1, 76 m²
Velkopavlovická, Brno-Vinohrady, Brno, Brno-město
24 990 Kč za měsíc
Pronájem bytu, 4+1, 92 m²
Loosova, Brno-sever, Brno, Brno-město
24 000 Kč za měsíc
Pronájem bytu, 4+1, 86 m²
Josefy Faimonové, Brno-Líšeň, Brno, Brno-město
22 500 Kč za měsíc
Pronájem bytu, 2+1, 63 m²
Letovická, Brno-Řečkovice a Mokrá Hora, Brno, Brno-město
21 000 Kč za měsíc