Prodej - hotel, 1 360 m²
Náměstí, Blšany, Louny
Cena na vyžádáníProdej - hotel, 1 360 m²
Náměstí, Blšany, Louny
Prodej zavedeného hotelu s restaurací, Blšany
Hlavní přednosti areálu:
• Fungující provoz s návratností – hotel i restaurace mají dlouhodobě stabilní klientelu a osvědčený provoz zaměřený na ubytování turistů, firemní klientelu i soukromé akce.
• Strategická poloha – umístění přímo na náměstí městečka Blšany, na hlavní silniční trase a v blízkosti dálnice D6. Dojezd do Prahy i Karlových Varů cca 50 minut.
• Výborný technický stav – obě budovy jsou ve velmi dobrém stavu a připraveny k okamžitému převzetí a pokračování v provozu.
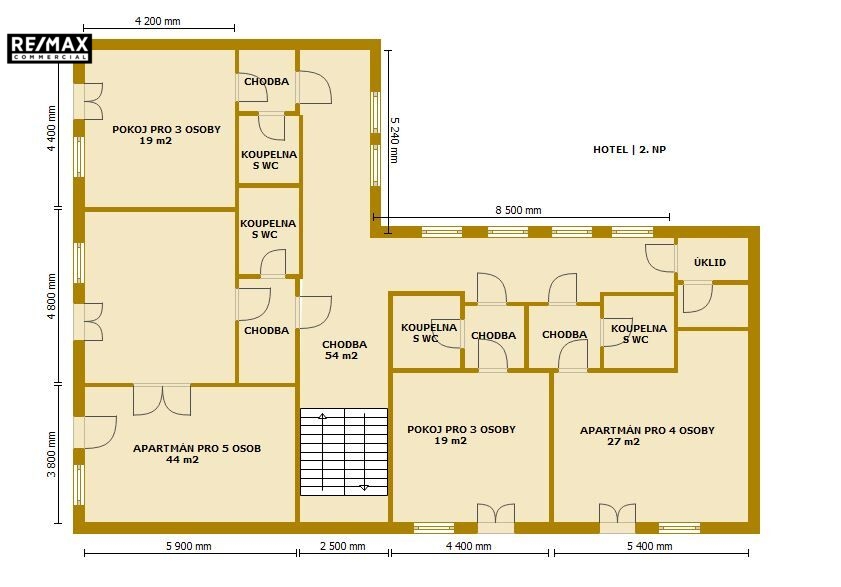
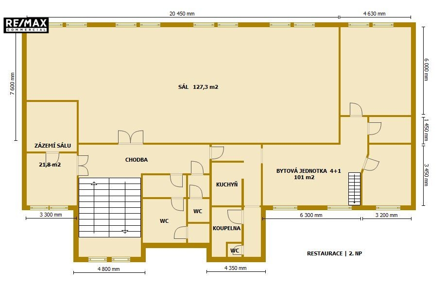
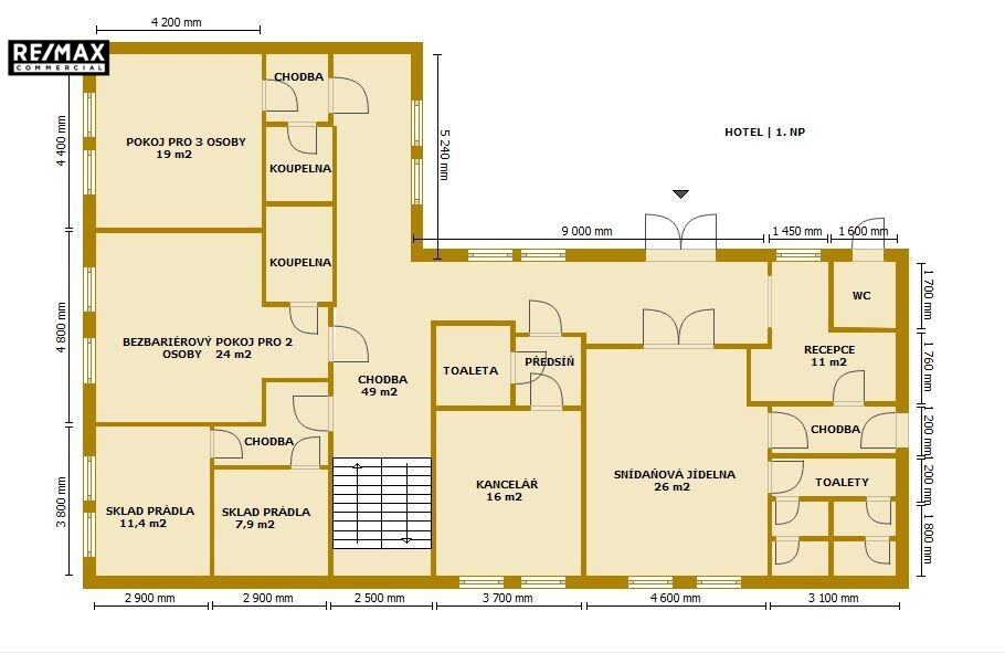
Dispozice a kapacity:
Hotelový komplex tvoří dvě propojené budovy – novostavba hotelu (kolaudace 2010) a zrekonstruovaný motorest (rekonstrukce 1996).
• Celková plocha pozemku: 1 199 m²
• Budova hotelu: 10 pokojů, kapacita 33 lůžek (možnost rozšíření na 45 míst). Všechny pokoje mají vlastní sociální zařízení a odpovídají tříhvězdičkovému standardu. Součástí hotelu je recepce, snídaňová/jednací místnost pro 25 osob, zázemí pro personál, skladovací prostory a kotelna. K budově je napojená zastřešená terasa.
• Budova motorestu: restaurace s kapacitou 55 míst, vinárna pro 35 osob a taneční sál až pro 100 hostů. Součástí je kompletně vybavená kuchyně s nerezovými spotřebiči. V budově se dále nachází byt 4+1, mezonetového typu, o výměře 101 m², vhodný pro majitele nebo správce areálu.
• Další prostory: uzavřený dvůr s možností parkování. Možnost příjezdu do dvora je jak z hlavní ulice (náměstí), tak z vedlejší ulice.
Konstrukce a technické parametry:
• Hotel: zděná budova s železobetonovými stropy, plastová okna s izolačním dvojsklem, úsporný provoz díky systému ovládání elektřiny pomocí karet.
• Motorest: zděná stavba z roku 1910, kompletní rekonstrukce proběhla v roce 1996.
• Vytápění: ústřední plynové vytápění v obou budovách.
• Přípojky: veřejný vodovod, kanalizace, elektro, plyn, vlastní studna.
• Celkový stav: výborný technický stav, areál je plně připraven k okamžitému provozu.
Lokalita:
Blšany leží v srdci významné chmelařské oblasti, v blízkosti města Žatec a pivovaru Krušovice. Díky své poloze je hotel vyhledávaným místem nejen pro turisty, ale i firemní klientelu a svatební či společenské akce. V okolí se nachází množství turistických a sportovních aktivit, například bývalý prvoligový fotbalový stadion FK Chmel Blšany, naučné stezky, nový park s dětským hřištěm a cyklostezky.
Závěr:
Další informace Vám makléř rád sdělí telefonicky, formou samostatné webové stránky nemovitosti nebo při osobní prezentaci na prohlídce.
| Cena: | Cena na vyžádání |
| Poznámka: | Obchodováno na nákupní nabídku. Včetně právního servisu a služeb. Cena k jednání |
| Datum k nastěhování: | 30.09.2024 |
| Číslo zakázky: | REALITYMIX-398944 |
Podrobné informace
- Zastavěná plocha: 384 m²
- Užitná plocha: 1360 m²
- Plocha parcely: 1199 m²
- Počet podlaží objektu: 3
- Druh objektu: cihlová
- Stav objektu: velmi dobrý
- Typ zařízení: Hotel
- Ostatní: Bezbarierový přístup
- Doprava: silnice, autobus
- Komunikace: asfaltová
- Voda: Zdroj pro celý objekt, Voda - dálkový vodovod
- Plyn: Plynovod
- Topení: Ústřední - plynové
- Odpad: Kanalizace
- Energetická náročnost budovy: D - Méně úsporná
- Ukazatel energetické náročnosti budovy: 103 kWh/m²
- Energetický ukazatel podle vyhlášky: č. 78/2013 Sb.
Právní rádce
-
Detail
V tomto článku shrneme nejdůležitější věci, které byste si měli promyslet, pokud se chystáte prodat svou nemovitost a chcete, abyste s kupujícím nemusel následně řešit vzniklé problémy.
Jako prodávající nesete rizika spojená nejen se samotným obchodem, ale i se stavem nemovitosti v době prodeje a pro minimalizaci rizik, je dobré se zamyslet nad uvedenými oblastmi.
-
Detail
Realitní makléř má své nezastupitelné místo v realitním obchodu. Realitním makléřem nemyslím nevzdělané jelito, které absolvovalo dvoudenní školení a ví, jak se nahraje inzerát na inzertní portál.
Realitním makléřem, který se Vám skutečně vyplatí, je zkušený profesionál, který je schopen Vám dobře poradit jak prodat za co nejvíc a s nejmenším rizikem a hlavně je Vás schopen obratně provést celým realitním obchodem.