Hospodářské noviny
Hledat Přihlásit seMůj účet Předplatné
Přihlásit seMůj účet Předplatné
  • Home
  • Byznys
  • Zprávy
  • Názory
  • Tech
  • Reality
  • Investice
  • Podcasty
  • Hry
  • PročNe
  • Archiv
  • Další
  • Jak nastartovat sever
  • Speciály HN
  • Víkend
  • Magazín Stavba
  • Knihy HN
  • Eventy
  • Green Deal
  • Inovátoři roku
  • Top ženy
  • Nej banka / Nej pojišťovna
  • Předplatné
  • Redakce
  • Inzerce
  • Kontakty
  • Newslettery
  • Ekonom
  • Logistika
  • Právní rádce
  • Hry
  • Economia
  • BeNative
  • Nastavení účtu
  • Moje předplatné
  • Odhlásit se

Reality

  • Reality
  • Vyhledávání nemovitostí
  • Top realitní fondy
  • Magazín Stavba
Prodej - dům/vila, 128 m²

Prodej - dům/vila, 128 m²

Svatkovice, Písek

5 490 000 Kč
  • RealityMIX
  • Domy a vily
  • Prodej
  • Jihočeský kraj
  • Písek
0 z 5 (0 hodnocení)

Prodej - dům/vila, 128 m²

Svatkovice, Písek

5 490 000 Kč
B
Úsporná
Výpis
Předchozí inzerát Další inzerát
1764682651-dfxlrbjenh-z-ulice6
1764682649-ydxnaaybtw-air2
1764682650-bmzsahhpne-alt-c3-a1nek1

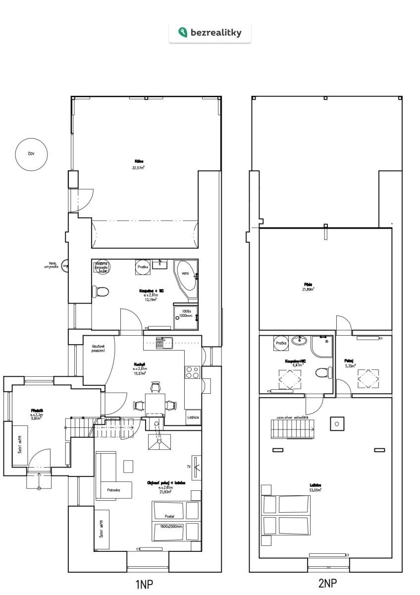
Prodej domu 128 m², pozemek 683 m²

Nabízím k prodeji krásný zateplený kamenný dům v osobním vlastnictví, 20km od Písku, který se vyznačuje skvělou orientací na slunnou okrasnou zahradu s altánkem a komfortně zařízený byt s novou půdní vestavbou. Dům má dispozici 2+1 (třetí pokoj malý), obytná plocha 104m2 s dvěma koupelnami s WC a je ve velmi dobrém stavu. Dům je zateplen a vybaven. Vše to, co je vidět na fotografiích. Je k dispozici i nový interiérový návrh, který ještě více propojí bydlení se zahradou a změní nemovitost zcela v nadčasovou. Několik fotografií v náhledu.

Rozloha domu činí 128 m², přičemž se nemovitost pyšní i pozemkem, celková rozloha pozemku je 683 m². Upravená zahrad poskytuje dostatek prostoru pro zahradní aktivity či další možnosti využití. Provozní stránku zvyšuje možnost parkování přímo před domem, ale pohodlně si lze najet autem velkou bránou z ulice na nádherně zatravněnou plochu.

Energetický štítek budovy s označením B svědčí o její efektivní a úsporné provozní náročnosti. V nemovitosti najdete kvalitní řešení, která spojují historický charakter kamenné stavby s moderními standardy bydlení.

Vytápění je krbovými kamny na dřevo s výměníkem v prostoru obývací části. Nejenom, že rozvede teplo po celém domě, ale přes velké sklo kamen vytvoří příjemnou atmosféru, ideální pro posezení. Elektrická energie - E.ON. Dále je dům napojen na vodu ze studny a již nyní obec oznámila budoucí napojení na veřejný vodovod. Odpadní voda je odvedena do ČOV na pozemku. Okna plastová s izolačním dvojsklem, zateplení celého pláště budovy 10cm minerální vaty, 2 střešní okna.

Dům má obrovský potenciál, lze rozšířit o další přízemní i půdní pokoje (64m2). Ve 3D vizualizaci se změnou dispozice, se obývací část s kuchyní, krbem a jídelnou, přesouvá do výhodnější polohy pro ještě lepší propojení se zahradou a polohou altánku se zděným krbem. Neskutečně vzdušně na Vás bude působit posezení na centrální pohovce nad kterou je otevřený strop až do krovu. Dlouhé zasklení a pozice oken bude se světelnou atmosférou podtrhovat výhled na upravenou zahradu v plném Vašem soukromí, kam sousedé nevidí. Rozměry altánku jsou 6,5x3,6m, takže velice prostorný i třeba pro zaparkování auta nebo motorky.

Výborná dostupnost do Písku, Bechyně, Tábora, Českých Budějovic. Zastávka autobusu v obci. Tato nemovitost je určena výhradně přímým zájemcům o koupi. Na inzerát můžete také reagovat přímo na webu Bezrealitky.
Cena: 5 490 000 Kč  
Číslo zakázky: REALITYMIX-970243

Podrobné informace

  • Poloha objektu: samostatný
  • Druh objektu: kamenná
  • Stav objektu: velmi dobrý
  • Počet podlaží objektu: 2
  • Typ domu: přízemní
  • Zastavěná plocha: 128 m²
  • Plocha parcely: 683 m²
  • Užitná plocha: 128 m²
  • Ostatní: Parkoviště
  • Umístění objektu: okraj obce
  • Energetická náročnost budovy: B - Úsporná

Sdílej na:

Facebook     Twitter

Tisk nabídky (pdf)

  • (A4)
  • (A4)
  • (A4)
  • (A4)
  • (A5)

Poslat odkaz:

Právní rádce

Právní rádce
  • V tomto článku shrneme nejdůležitější věci, které byste si měli promyslet, pokud se chystáte prodat svou nemovitost a chcete, abyste s kupujícím nemusel následně řešit vzniklé problémy.

    Jako prodávající nesete rizika spojená nejen se samotným obchodem, ale i se stavem nemovitosti v době prodeje a pro minimalizaci rizik, je dobré se zamyslet nad uvedenými oblastmi.

    Detail
  • Realitní makléř má své nezastupitelné místo v realitním obchodu. Realitním makléřem nemyslím nevzdělané jelito, které absolvovalo dvoudenní školení a ví, jak se nahraje inzerát na inzertní portál.

    Realitním makléřem, který se Vám skutečně vyplatí, je zkušený profesionál, který je schopen Vám dobře poradit jak prodat za co nejvíc a s nejmenším rizikem a hlavně je Vás schopen obratně provést celým realitním obchodem.

    Detail
  • Detail
Chci vědět víc
Právní rádce

Mapa

* Umístění na mapě je na základě GPS informací dodaných realitní kanceláří.
* Pozice na mapě je pouze orientační.

Souhlas se zpracováním osobních údajů

Uživatel serveru Reality.hn.cz (dále jen „Server“) dostupného na internetové adrese (URL) https://realitymix.hn.cz, který provozuje společnost DALTEN media s.r.o., se sídlem Na Harfě 916/9a, Praha 9, 190 00, IČO: 271 35 306 (dále jen „Správce“) jako provozovateli tohoto Serveru uděluje svůj výslovný souhlas v souladu s ustanovením § 5 zákona č. 101/2000 Sb. O ochraně osobních údajů a o změně některých zákonů, v platném znění (dále jen „zákon o ochraně osobních údajů“), se zpracováním uživatelem poskytnutých osobních údajů a dalších dat.

Uživatel poskytuje Správci osobní údaje v rozsahu: jméno, příjmení, e-mailová adresa, telefonický kontakt a další data, a to z důvodu projeveného zájmu o nemovitost, kde prostřednictvím služby Serveru Správce osloví Uživatel inzerenta uvedeného v detailu nemovitosti - Bezrealitky s.r.o. (IČ 08063168) se zájmem o jeho služby.

Uživatel tyto osobní údaje poskytuje dobrovolně a bere na vědomí, že součástí služeb Správce, které Správce Uživateli poskytuje, je vyhledání všech Uživateli vyhovujících (dle parametrů - cena, typ nemovitosti, lokalita atd.) nemovitostí. Správce za tímto účelem provozuje aplikace Hlídací pes a newsletter. Tyto služby je možné z každého zaslaného emailu odhlásit. Souhlas se zpracováním osobních údajů Uživatel poskytuje Správci na dobu neurčitou s tím, že svůj udělený souhlas může Uživatel kdykoliv na drese správce info@realitymix.cz odvolat. Správce garantuje Uživateli i další práva uvedené v ustanovení §11 a §21 zákoba č. 101/200 Sb. Ve znění pozdějších předpisů. Více informací o zpracování údajů získáte zde (realitymix.cz/zasady-ochrany-osobnich-udaju)

Podobné nemovitosti

Prodej - dům/vila, 243 m² obrázek

Prodej - dům/vila, 243 m²

Přílepov, Písek

4 890 000 Kč
Prodej - dům/vila, 98 m² obrázek

Prodej - dům/vila, 98 m²

Čimelice, Písek

4 500 000 Kč
Prodej - dům/vila, 64 m² obrázek

Prodej - dům/vila, 64 m²

Nová Dobev, Písek

4 800 000 Kč
Prodej - dům/vila, 70 m² obrázek

Prodej - dům/vila, 70 m²

Oldřichov, Písek

5 490 000 Kč

Napsat zprávu prodejci

Prodej - dům/vila, 128 m²

Prodej - dům/vila, 128 m²

Svatkovice, Písek

5 490 000 Kč

Hospodářské noviny

© 1996-2026 Economia, a.s.

Hospodářské noviny (print)   ISSN 0862-9587
Hospodářské noviny (online) ISSN 2787-950X

Certifikováno
jti
Sledujte nás
Stáhněte si aplikaci HN
  • Kontakty
  • Tiráž redakce HN
  • Economia
  • Kariéra v HN
  • Ceník inzerce
  • Ochrana osobních údajů
  • Prohlášení o cookies
  • Nastavení soukromí
  • Všeobecné smluvní podmínky
  • Koupit / darovat předplatné
  • Eventy
  • Newslettery
  • RSS kanály
Autorská práva vykonává vydavatel. Bez písemného svolení vydavatele je zakázáno jakékoli užití částí nebo celku díla, zejména rozmnožování a šíření jakýmkoli způsobem, mechanickým nebo elektronickým, v českém nebo jiném jazyce. Bez souhlasu vydavatele je zakázáno též rozmnožování obsahu pro účely automatizované analýzy textů nebo dat podle ustanovení § 39c autorského zákona.