Prodej - komerční objekt, sklad, 214 m²
Bělov, Zlín
Cena na vyžádáníProdej - komerční objekt, sklad, 214 m²
Bělov, Zlín
Prodej rodinného domu 214 m², Bělov
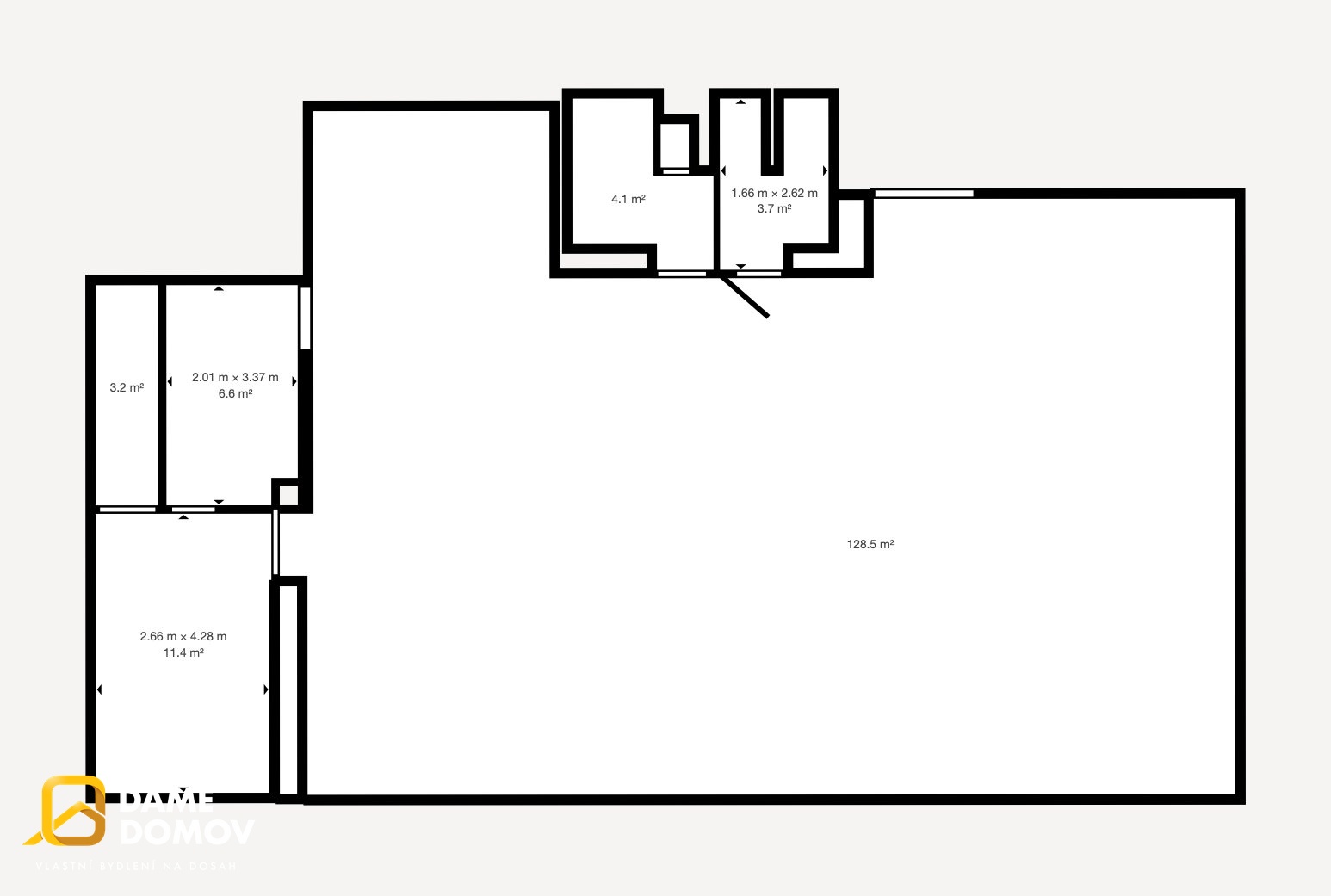
Nemovitost je v dobrém technickém stavu a je napojena na elektřinu, obecní vodovod i kanalizaci. Dominantou je hlavní místnost – „sál“ – s vjezdem přes elektricky ovládaná vrata kde uskladníte až 15 aut nebo mnoho motocyklů. Dále je zde kancelář, kuchyňka, sociální zázemí (toalety, sprcha) a sklep. Bočním průchodem se dostanete na zadní dvorek, včetně úložného prostoru a vstupu na půdu, která nabízí možnost rozšíření obytné či užitné části.
Současné využití objektu je ideální pro sběratele, nadšence do automobilů a motorek, nebo pro více vlastníků, kteří potřebují bezpečné a kryté parkování. Díky dispozici a poloze se po jednoduché úpravě nabízí i široké spektrum dalších možností pro Vaše potřeby. Rodinný dům pro bydlení, nebo pronájem, kombinace bydlení a podnikání, dílna, sklad, případně jiné činnosti pro veřejnost, nebo svou potřebu.
Bělov má základní občanskou vybavenost a výborné spojení – do Otrokovic pár minut, do Zlína cca 15 minut, rychlý nájezd na dálnici D55 směr Uherské Hradiště či Brno. Okolní příroda je ideální pro procházky a cyklovýlety.
Pokud Vás tato nabídka zaujala, neváhejte nás kontaktovat pro bližší informace k objektu, nebo domluvení prohlídky.
| Cena: | Cena na vyžádání |
| Poznámka: | dohodou, cena k jednání |
| Datum k nastěhování: | 14.01.2026 |
| Plocha: | 214 m² |
| Číslo zakázky: | REALITYMIX-14317 |
Podrobné informace
- Celková plocha: 214 m²
- Počet podlaží objektu: 1
- Druh objektu: cihlová
- Stav objektu: dobrý
- Účel budovy: Sklad
- Umístění objektu: centrum obce
- Doprava: silnice, autobus
- Elektřina: Elektro - 230 V, Elektro - 400 V
- Voda: Voda - dálkový vodovod
- Odpad: Kanalizace
- Energetická náročnost budovy: G - Mimořádně nehospodárná
Právní rádce
-
Detail
V tomto článku shrneme nejdůležitější věci, které byste si měli promyslet, pokud se chystáte prodat svou nemovitost a chcete, abyste s kupujícím nemusel následně řešit vzniklé problémy.
Jako prodávající nesete rizika spojená nejen se samotným obchodem, ale i se stavem nemovitosti v době prodeje a pro minimalizaci rizik, je dobré se zamyslet nad uvedenými oblastmi.
-
Detail
Realitní makléř má své nezastupitelné místo v realitním obchodu. Realitním makléřem nemyslím nevzdělané jelito, které absolvovalo dvoudenní školení a ví, jak se nahraje inzerát na inzertní portál.
Realitním makléřem, který se Vám skutečně vyplatí, je zkušený profesionál, který je schopen Vám dobře poradit jak prodat za co nejvíc a s nejmenším rizikem a hlavně je Vás schopen obratně provést celým realitním obchodem.
Mapa
Podobné nemovitosti
Prodej - komerční objekt, výroba, 380 m²
Zádveřice, Zlín
3 800 000 Kč
Prodej - komerční objekt, jiný, 4 196 m²
2. května, Napajedla, Zlín
28 500 000 Kč
Prodej - komerční objekt, jiný, 350 m²
Lorencova, Zlín
Cena na vyžádání
Prodej - komerční objekt, sklad, 3 394 m²
třída 3. května, Malenovice, Zlín
Cena na vyžádání